Woning omschrijving
In een rustige, autoluwe straat in de populaire woonwijk Camminghaburen staat deze keurig onderhouden twee-onder-een-kapwoning met opbouw. De woning is van de eerste eigenaar, wat direct te zien is aan de zorg en aandacht waarmee alles is onderhouden. Met een woonoppervlakte van ca. 138 m², een ruim perceel van 283 m² eigen grond en een gunstig energielabel B, is dit een huis waar je jaren met plezier kan wonen. De woning beschikt over een tuingerichte woonkamer met veel lichtinval, een praktische bijkeuken en een aangebouwde garage en een extra bergruimte. De achtertuin op het westen biedt volop zon en beschikt over een achterom en een houten berging – ideaal voor de tuinspullen. Op de oprit is ruimte om op eigen terrein te parkeren. Dankzij de goede isolatie (HR++ beglazing, vloer-, muur- en dakisolatie) woon je hier comfortabel en energiezuinig. De rustige ligging en het autoluwe karakter van de straat maken dit een uitstekende gezinswoning in een van de meest geliefde delen van Camminghaburen. Kortom: een ruime, goed onderhouden woning op een prachtige locatie — klaar voor de volgende stap in jouw woonavontuur!
Indeling:
Begane grond: hal, toilet, tuingerichte woonkamer, dichte keuken, bijkeuken, garage en berging.
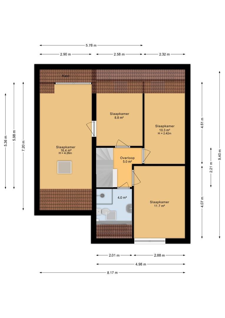
1e verdieping: overloop, 4 slaapkamers (waarvan 1 een tussenkamer is) en een badkamer met ligbad, douche en 2e toilet, vaste trap naar de 2e verdieping.
2e verdieping: overloop en slaapkamer.
Handig om te weten:
- bouwjaar: 1987
- perceeloppervlakte: 283 m²
- woonoppervlakte: ca. 138 m²
- energielabel: B
- CV ketel 2017
- 10 zonnepanelen
- royale opbouw
- populaire ligging
- 5 slaapkamers (waarvan 1 tussenkamer)
- achtertuin op het westen
- schutting wordt binnenkort vernieuwd!
- de foto's, video en plattegronden geven een goed beeld van deze mooie woning!
De verkoopinformatie is door ons met de nodige zorgvuldigheid samengesteld. Onzerzijds wordt echter geen enkele aansprakelijkheid aanvaard voor enige onvolledigheid, onjuistheid of anderszins, dan wel de gevolgen daarvan. Alle opgegeven maten en oppervlakten zijn indicatief. Koper heeft zijn eigen onderzoek plicht naar alle zaken die voor hem of haar van belang zijn. Met betrekking tot deze woning is de makelaar adviseur van verkoper. Wij adviseren u een deskundige (NVM-)makelaar in te schakelen die u begeleidt bij het aankoopproces. Indien u specifieke wensen heeft omtrent de woning, adviseren wij u deze tijdig kenbaar te maken en hiernaar zelfstandig onderzoek te (laten) doen. Van toepassing zijn de NVM voorwaarden.
Scheenstra Makelaars staat niet in voor de juistheid van de plattegronden en aanvaardt hiervoor geen aansprakelijkheid.
Volledige omschrijving
Minder omschrijving
Indeling:
Begane grond: hal, toilet, tuingerichte woonkamer, dichte keuken, bijkeuken, garage en berging.
1e verdieping: overloop, 4 slaapkamers (waarvan 1 een tussenkamer is) en een badkamer met ligbad, douche en 2e toilet, vaste trap naar de 2e verdieping.
2e verdieping: overloop en slaapkamer.
Handig om te weten:
- bouwjaar: 1987
- perceeloppervlakte: 283 m²
- woonoppervlakte: ca. 138 m²
- energielabel: B
- CV ketel 2017
- 10 zonnepanelen
- royale opbouw
- populaire ligging
- 5 slaapkamers (waarvan 1 tussenkamer)
- achtertuin op het westen
- schutting wordt binnenkort vernieuwd!
- de foto's, video en plattegronden geven een goed beeld van deze mooie woning!
De verkoopinformatie is door ons met de nodige zorgvuldigheid samengesteld. Onzerzijds wordt echter geen enkele aansprakelijkheid aanvaard voor enige onvolledigheid, onjuistheid of anderszins, dan wel de gevolgen daarvan. Alle opgegeven maten en oppervlakten zijn indicatief. Koper heeft zijn eigen onderzoek plicht naar alle zaken die voor hem of haar van belang zijn. Met betrekking tot deze woning is de makelaar adviseur van verkoper. Wij adviseren u een deskundige (NVM-)makelaar in te schakelen die u begeleidt bij het aankoopproces. Indien u specifieke wensen heeft omtrent de woning, adviseren wij u deze tijdig kenbaar te maken en hiernaar zelfstandig onderzoek te (laten) doen. Van toepassing zijn de NVM voorwaarden.
Scheenstra Makelaars staat niet in voor de juistheid van de plattegronden en aanvaardt hiervoor geen aansprakelijkheid.
Woning kenmerken
| Type | Eengezinswoning, Woonruimte, Twee onder een kapwoning |
|---|---|
| Bouwvorm | bestaande bouw |
| Woonoppervlakte | 138 m² |
| Perceeloppervlakte | 283 m² |
| Energielabel | B |
| Bouwjaar | 1987 |
Bennemastate 9
Leeuwarden
€ 375.000 k.k.
Vragen over Bennemastate 9, Leeuwarden?

Ate Scheenstra
de makelaar voor deze woning
| 058-2650063 | |
| [email protected] |
Refresh to make it work.
Vragen over Bennemastate 9, LEEUWARDEN?
Bel ons op 058-2650063 voor direct contact of maak een afspraak via ons contactformulier.


































































































Refresh to make it work.
Refresh to make it work.



