Woning omschrijving
Welkom op Dennenstraat 91 in Leeuwarden — een lichte en gemoderniseerde tussenwoning waar je je direct thuis voelt. Met een zonnige tuin op het zuidwesten, een moderne afwerking en een rustige maar centrale ligging, is deze woning wellicht je volgende stap. Of je nu starter bent en/of samen wil gaan wonen: hier woon je comfortabel, compleet en met volop leefruimte. Bij binnenkomst word je verrast door de ruime hal met modern toilet en veel daglicht. De tuingerichte woonkamer biedt volop ruimte voor een gezellige zithoek en een eettafel. Dankzij de grote raampartijen valt het licht hier prachtig naar binnen. De open keuken aan de achterzijde is strak en modern afgewerkt, en voorzien van de nodige inbouwapparatuur. De woning beschikt over twee ruime slaapkamers, die praktisch in te delen zijn. De badkamer is modern, ruim en voorzien van een comfortabele douche en een stijlvol wastafelmeubel. De woning is grotendeels voorzien van kunststofkozijnen met isolerende beglazing. Voor dit bouwjaar heeft de woning een gunstig energielabel C. De achtertuin ligt perfect op de zon: zuidwesten. Achterin de tuin vind je zowel een stenen berging als een houten berging – ideaal voor fietsen, gereedschap of extra opslagruimte. Dennenstraat 91 ligt op loopafstand van een supermarkt, park, sportvoorzieningen en openbaar vervoer.
Indeling:
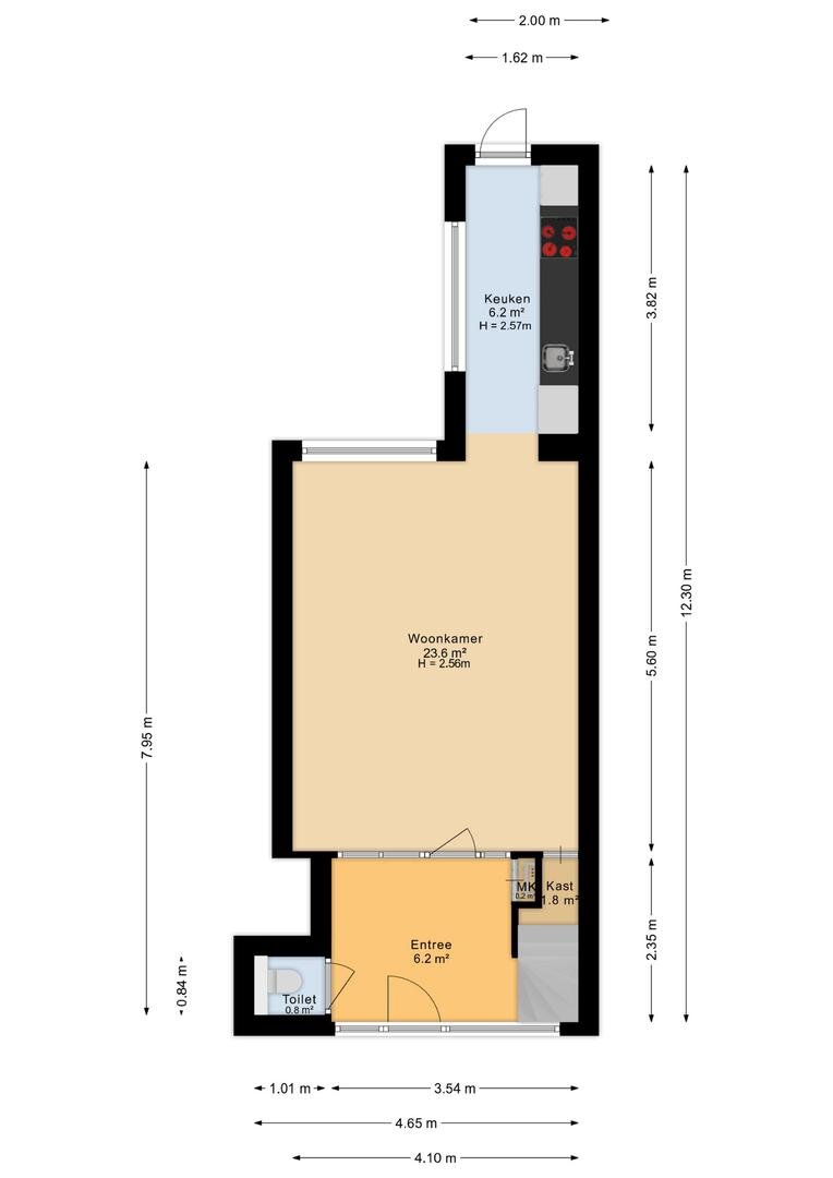
Begane grond: royale hal, modern toilet, tuingerichte woonkamer, moderne keuken in de aanbouw voorzien van inbouwapparatuur.
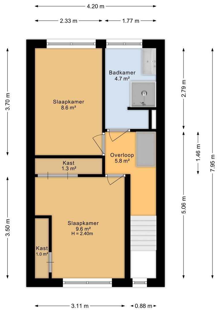
1e verdieping: overloop, 2 ruime slaapkamers, ruime moderne badkamer en wasruimte.
2e verdieping: vliering.
De pluspunten op een rij:
- gemoderniseerde tussenwoning
- achtertuin op het zuidwesten
- grotendeels kunststof kozijnen met isolerende beglazing
- moderne keuken met inbouwapparatuur
- ruime badkamer met douche en wastafelmeubel
- 2 ruime slaapkamers
- royale hal met modern toilet
- tuingerichte, lichte woonkamer
- stenen én houten berging
- 123 m² eigen grond
- supermarkt, park en sport dichtbij
Aktepassering bij notariskantoor Mirjam Bos Grou.
De verkoopinformatie is door ons met de nodige zorgvuldigheid samengesteld. Onzerzijds wordt echter geen enkele aansprakelijkheid aanvaard voor enige onvolledigheid, onjuistheid of anderszins, dan wel de gevolgen daarvan. Alle opgegeven maten en oppervlakten zijn indicatief. Koper heeft zijn eigen onderzoek plicht naar alle zaken die voor hem of haar van belang zijn. Met betrekking tot deze woning is de makelaar adviseur van verkoper. Wij adviseren u een deskundige (NVM-)makelaar in te schakelen die u begeleidt bij het aankoopproces. Indien u specifieke wensen heeft omtrent de woning, adviseren wij u deze tijdig kenbaar te maken en hiernaar zelfstandig onderzoek te (laten) doen. Van toepassing zijn de NVM voorwaarden.
Scheenstra Makelaars staat niet in voor de juistheid van de plattegronden en aanvaardt hiervoor geen aansprakelijkheid.
Volledige omschrijving
Minder omschrijving
Indeling:
Begane grond: royale hal, modern toilet, tuingerichte woonkamer, moderne keuken in de aanbouw voorzien van inbouwapparatuur.
1e verdieping: overloop, 2 ruime slaapkamers, ruime moderne badkamer en wasruimte.
2e verdieping: vliering.
De pluspunten op een rij:
- gemoderniseerde tussenwoning
- achtertuin op het zuidwesten
- grotendeels kunststof kozijnen met isolerende beglazing
- moderne keuken met inbouwapparatuur
- ruime badkamer met douche en wastafelmeubel
- 2 ruime slaapkamers
- royale hal met modern toilet
- tuingerichte, lichte woonkamer
- stenen én houten berging
- 123 m² eigen grond
- supermarkt, park en sport dichtbij
Aktepassering bij notariskantoor Mirjam Bos Grou.
De verkoopinformatie is door ons met de nodige zorgvuldigheid samengesteld. Onzerzijds wordt echter geen enkele aansprakelijkheid aanvaard voor enige onvolledigheid, onjuistheid of anderszins, dan wel de gevolgen daarvan. Alle opgegeven maten en oppervlakten zijn indicatief. Koper heeft zijn eigen onderzoek plicht naar alle zaken die voor hem of haar van belang zijn. Met betrekking tot deze woning is de makelaar adviseur van verkoper. Wij adviseren u een deskundige (NVM-)makelaar in te schakelen die u begeleidt bij het aankoopproces. Indien u specifieke wensen heeft omtrent de woning, adviseren wij u deze tijdig kenbaar te maken en hiernaar zelfstandig onderzoek te (laten) doen. Van toepassing zijn de NVM voorwaarden.
Scheenstra Makelaars staat niet in voor de juistheid van de plattegronden en aanvaardt hiervoor geen aansprakelijkheid.
Woning kenmerken
| Type | Eengezinswoning, Woonruimte, Tussenwoning |
|---|---|
| Bouwvorm | bestaande bouw |
| Woonoppervlakte | 73 m² |
| Perceeloppervlakte | 123 m² |
| Energielabel | C |
| Bouwjaar | 1957 |
Dennenstraat 91
Leeuwarden
€ 199.000 k.k.
Vragen over Dennenstraat 91, Leeuwarden?

Ate Scheenstra
de makelaar voor deze woning
| 058-2650063 | |
| [email protected] |
Refresh to make it work.
Vragen over Dennenstraat 91, LEEUWARDEN?
Bel ons op 058-2650063 voor direct contact of maak een afspraak via ons contactformulier.






























































Refresh to make it work.
Refresh to make it work.




