Woning omschrijving
Luxe wonen aan OPEN VAARWATER met zonnige tuin op het ZUIDEN, serre en energielabel A. Aan de rand van het gewilde Goutum-Noord staat deze moderne twee-onder-een-kapwoning op een werkelijk schitterende locatie aan open vaarwater. Hier geniet je van rust, ruimte en het vrije uitzicht over het groen – terwijl de levendige binnenstad van Leeuwarden slechts enkele minuten verwijderd is. De woning (bouwjaar 1999) is uitstekend onderhouden en heeft een gunstig energielabel A, mede dankzij de zonnepanelen op het dak. Binnen tref je een lichte, tuingerichte woonkamer, een moderne keuken en badkamer, en een ruime zolder met volop mogelijkheden voor extra kamers. Buiten word je verrast door de luxe verwarmde serre, een zonnige tuin op het zuiden en een royale aanlegsteiger aan het water. De achtertuin is fraai aangelegd, met optimale zonligging op het zuiden en een schitterend uitzicht over het water en het groen. Er is een groot terras, een aanlegsteiger voor een boot en diverse zitplekken om van de zon te genieten. De serre vormt een natuurlijke verlenging van de woonkamer, waardoor binnen en buiten naadloos in elkaar overlopen.
Indeling
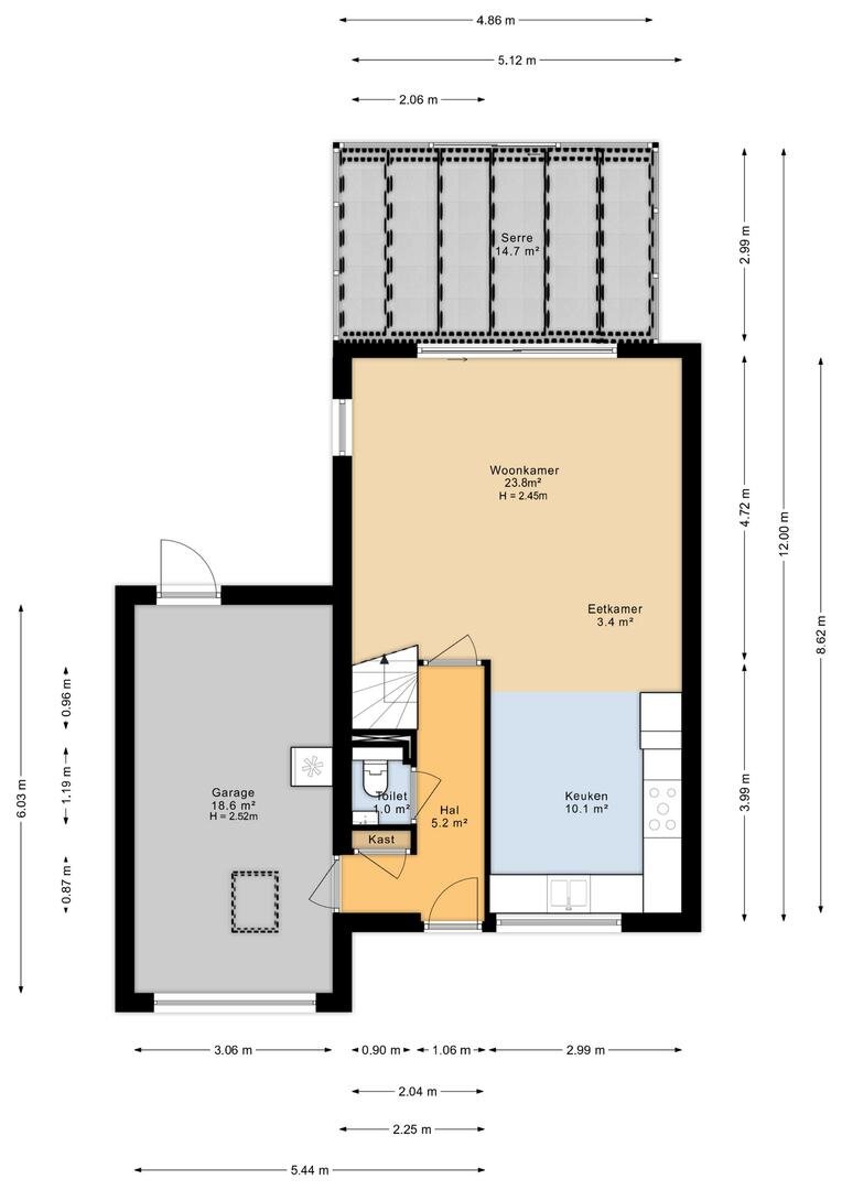
Begane grond: voorentree, hal, toegang tot de garage, modern toilet, tuingerichte woonkamer met open keuken, moderne keuken voorzien van apparatuur, luxe verwarmde serre.
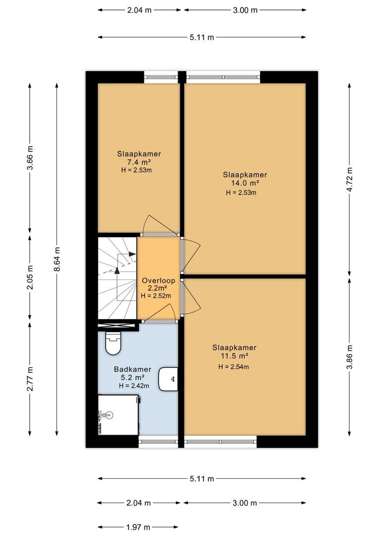
1e verdieping: overloop, drie slaapkamers en een moderne badkamer met inloopdouche en tweede toilet en vaste trap naar de 2e verdieping.
2e verdieping: grote zolder met mogelijkheid voor het realiseren van extra kamers.
Pluspunten op een rij:
- open vaarwater met eigen aanlegsteiger
- bouwjaar 1999
- 251 m2 eigen grond
- energielabel A!
- monoblock warmtepomp 2025 in de serre
- CV ketel Intergas HRE 2018
- kwaliteit waterontharder (2024)
- achtertuin op het zuiden met fraai uitzicht
- luxe verwarmde serre met infrarood heater (2025)
- moderne keuken en stijlvolle badkamer
- de garage is ook via de hal te bereiken
- grote zolder met mogelijkheden voor extra kamers
- parkeren op eigen terrein.
De foto's, video en plattegronden geven een goed beeld van deze mooie woning!
De verkoopinformatie is door ons met de nodige zorgvuldigheid samengesteld. Onzerzijds wordt echter geen enkele aansprakelijkheid aanvaard voor enige onvolledigheid, onjuistheid of anderszins, dan wel de gevolgen daarvan. Alle opgegeven maten en oppervlakten zijn indicatief. Koper heeft zijn eigen onderzoek plicht naar alle zaken die voor hem of haar van belang zijn. Met betrekking tot deze woning is de makelaar adviseur van verkoper. Wij adviseren u een deskundige (NVM-)makelaar in te schakelen die u begeleidt bij het aankoopproces. Indien u specifieke wensen heeft omtrent de woning, adviseren wij u deze tijdig kenbaar te maken en hiernaar zelfstandig onderzoek te (laten) doen. Van toepassing zijn de NVM voorwaarden.
Scheenstra Makelaars staat niet in voor de juistheid van de plattegronden en aanvaardt hiervoor geen aansprakelijkheid.
Volledige omschrijving
Minder omschrijving
Indeling
Begane grond: voorentree, hal, toegang tot de garage, modern toilet, tuingerichte woonkamer met open keuken, moderne keuken voorzien van apparatuur, luxe verwarmde serre.
1e verdieping: overloop, drie slaapkamers en een moderne badkamer met inloopdouche en tweede toilet en vaste trap naar de 2e verdieping.
2e verdieping: grote zolder met mogelijkheid voor het realiseren van extra kamers.
Pluspunten op een rij:
- open vaarwater met eigen aanlegsteiger
- bouwjaar 1999
- 251 m2 eigen grond
- energielabel A!
- monoblock warmtepomp 2025 in de serre
- CV ketel Intergas HRE 2018
- kwaliteit waterontharder (2024)
- achtertuin op het zuiden met fraai uitzicht
- luxe verwarmde serre met infrarood heater (2025)
- moderne keuken en stijlvolle badkamer
- de garage is ook via de hal te bereiken
- grote zolder met mogelijkheden voor extra kamers
- parkeren op eigen terrein.
De foto's, video en plattegronden geven een goed beeld van deze mooie woning!
De verkoopinformatie is door ons met de nodige zorgvuldigheid samengesteld. Onzerzijds wordt echter geen enkele aansprakelijkheid aanvaard voor enige onvolledigheid, onjuistheid of anderszins, dan wel de gevolgen daarvan. Alle opgegeven maten en oppervlakten zijn indicatief. Koper heeft zijn eigen onderzoek plicht naar alle zaken die voor hem of haar van belang zijn. Met betrekking tot deze woning is de makelaar adviseur van verkoper. Wij adviseren u een deskundige (NVM-)makelaar in te schakelen die u begeleidt bij het aankoopproces. Indien u specifieke wensen heeft omtrent de woning, adviseren wij u deze tijdig kenbaar te maken en hiernaar zelfstandig onderzoek te (laten) doen. Van toepassing zijn de NVM voorwaarden.
Scheenstra Makelaars staat niet in voor de juistheid van de plattegronden en aanvaardt hiervoor geen aansprakelijkheid.
Woning kenmerken
| Type | Eengezinswoning, Woonruimte, Twee onder een kapwoning |
|---|---|
| Bouwvorm | bestaande bouw |
| Woonoppervlakte | 113 m² |
| Perceeloppervlakte | 251 m² |
| Energielabel | A |
| Bouwjaar | 1999 |
Dobbehôf 93
Goutum
€ 489.000 k.k.
Interesse in Dobbehôf 93, Goutum?

Ate Scheenstra
de makelaar voor deze woning
| 058-2650063 | |
| [email protected] |
Refresh to make it work.
Interesse?
Plan een bezichtiging voor Dobbehôf 93, Goutum.
Bel ons op 058-2650063 voor direct contact. Of laat je gegevens achter en wij nemen zo snel mogelijk contact met je op.




















































































Refresh to make it work.
Refresh to make it work.


