Woning omschrijving
Wauw! Instapklare recent verbouwde twee-onder-één-kapwoning met royale aanbouw en garage. In het gewilde en groene Camminghaburen staat deze moderne woning met energielabel A+, hybride warmtepomp en aangebouwde garage. Met een woonoppervlakte van ca. 142 m², waarvan maar liefst 73 m² op de begane grond, biedt deze woning volop ruimte, comfort en duurzaamheid. De woning is gelegen in een rustige, autoluwe straat met veel groen en water in de omgeving — ideaal voor gezinnen of iedereen die comfortabel wil wonen met alle voorzieningen binnen handbereik.
Indeling
Begane grond:
Via de entree kom je in de hal. De royale, tuingerichte woonkamer met eethoek is heerlijk licht dankzij de twee elektrische dakramen en grote schuifpui met twee deuren die direct toegang geeft tot de achtertuin. De moderne half open keuken is voorzien van diverse inbouwapparatuur en heeft een eigentijdse uitstraling. Via de tussenhal met toilet ga je naar de 1e verdieping. De aangebouwde garage is vanuit de woning bereikbaar en biedt volop bergruimte of mogelijkheden voor hobby.
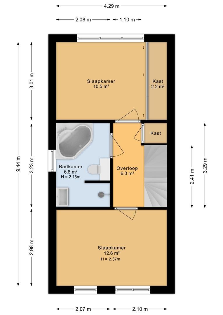
Eerste verdieping:
Hier bevinden zich 2 ruime slaapkamers en een vergrote, moderne badkamer met een groot hoekligbad, douche, wastafelmeubel en 2e toilet. Vast trap naar de tweede verdieping.
Tweede verdieping:
2 royale slaapkamers en wasruimte.
Pluspunten op een rij:
- woonoppervlakte ca. 142 m²
- energielabel A+
- vloerverwarming op de begane grond
- hybride warmtepomp (lucht/water), 6 zonnepanelen en HR++ beglazing
- moderne keuken en vergrote gemoderniseerde badkamer
- royale tuingerichte woonkamer met eethoek en met grote schuifpui
- 4 ruime slaapkamers
- aangebouwde garage
- zonnige achtertuin met achterom
- gelegen aan autoluwe straat in groene en waterrijke woonwijk Camminghaburen
- instapklaar: verhuizen en wonen!
Omgeving:
Camminghaburen is een van de meest geliefde woonwijken van Leeuwarden. Je vindt er volop groen, water, speelvoorzieningen, scholen, winkels en goede verbindingen naar het centrum en uitvalswegen. Hier woon je rustig, maar met alles dichtbij.
Kortom: Epemastate 63 is een moderne, energiezuinige en ruime gezinswoning op een fantastische plek in Leeuwarden.
Pak je kans en plan snel een bezichtiging — dit is een woning die je gezien móét hebben!
De verkoopinformatie is door ons met de nodige zorgvuldigheid samengesteld. Onzerzijds wordt echter geen enkele aansprakelijkheid aanvaard voor enige onvolledigheid, onjuistheid of anderszins, dan wel de gevolgen daarvan. Alle opgegeven maten en oppervlakten zijn indicatief. Koper heeft zijn eigen onderzoek plicht naar alle zaken die voor hem of haar van belang zijn. Met betrekking tot deze woning is de makelaar adviseur van verkoper. Wij adviseren u een deskundige (NVM-)makelaar in te schakelen die u begeleidt bij het aankoopproces. Indien u specifieke wensen heeft omtrent de woning, adviseren wij u deze tijdig kenbaar te maken en hiernaar zelfstandig onderzoek te (laten) doen. Van toepassing zijn de NVM voorwaarden.
Scheenstra Makelaars staat niet in voor de juistheid van de plattegronden en aanvaardt hiervoor geen aansprakelijkheid.
Volledige omschrijving
Minder omschrijving
Indeling
Begane grond:
Via de entree kom je in de hal. De royale, tuingerichte woonkamer met eethoek is heerlijk licht dankzij de twee elektrische dakramen en grote schuifpui met twee deuren die direct toegang geeft tot de achtertuin. De moderne half open keuken is voorzien van diverse inbouwapparatuur en heeft een eigentijdse uitstraling. Via de tussenhal met toilet ga je naar de 1e verdieping. De aangebouwde garage is vanuit de woning bereikbaar en biedt volop bergruimte of mogelijkheden voor hobby.
Eerste verdieping:
Hier bevinden zich 2 ruime slaapkamers en een vergrote, moderne badkamer met een groot hoekligbad, douche, wastafelmeubel en 2e toilet. Vast trap naar de tweede verdieping.
Tweede verdieping:
2 royale slaapkamers en wasruimte.
Pluspunten op een rij:
- woonoppervlakte ca. 142 m²
- energielabel A+
- vloerverwarming op de begane grond
- hybride warmtepomp (lucht/water), 6 zonnepanelen en HR++ beglazing
- moderne keuken en vergrote gemoderniseerde badkamer
- royale tuingerichte woonkamer met eethoek en met grote schuifpui
- 4 ruime slaapkamers
- aangebouwde garage
- zonnige achtertuin met achterom
- gelegen aan autoluwe straat in groene en waterrijke woonwijk Camminghaburen
- instapklaar: verhuizen en wonen!
Omgeving:
Camminghaburen is een van de meest geliefde woonwijken van Leeuwarden. Je vindt er volop groen, water, speelvoorzieningen, scholen, winkels en goede verbindingen naar het centrum en uitvalswegen. Hier woon je rustig, maar met alles dichtbij.
Kortom: Epemastate 63 is een moderne, energiezuinige en ruime gezinswoning op een fantastische plek in Leeuwarden.
Pak je kans en plan snel een bezichtiging — dit is een woning die je gezien móét hebben!
De verkoopinformatie is door ons met de nodige zorgvuldigheid samengesteld. Onzerzijds wordt echter geen enkele aansprakelijkheid aanvaard voor enige onvolledigheid, onjuistheid of anderszins, dan wel de gevolgen daarvan. Alle opgegeven maten en oppervlakten zijn indicatief. Koper heeft zijn eigen onderzoek plicht naar alle zaken die voor hem of haar van belang zijn. Met betrekking tot deze woning is de makelaar adviseur van verkoper. Wij adviseren u een deskundige (NVM-)makelaar in te schakelen die u begeleidt bij het aankoopproces. Indien u specifieke wensen heeft omtrent de woning, adviseren wij u deze tijdig kenbaar te maken en hiernaar zelfstandig onderzoek te (laten) doen. Van toepassing zijn de NVM voorwaarden.
Scheenstra Makelaars staat niet in voor de juistheid van de plattegronden en aanvaardt hiervoor geen aansprakelijkheid.
Woning kenmerken
| Type | Eengezinswoning, Woonruimte, Twee onder een kapwoning |
|---|---|
| Bouwvorm | bestaande bouw |
| Woonoppervlakte | 142 m² |
| Perceeloppervlakte | 189 m² |
| Energielabel | A + |
| Bouwjaar | 1979 |
Epemastate 63
Leeuwarden
€ 399.000 k.k.
Interesse in Epemastate 63, Leeuwarden?

Ate Scheenstra
de makelaar voor deze woning
| 058-2650063 | |
| [email protected] |
Refresh to make it work.
Interesse?
Plan een bezichtiging voor Epemastate 63, Leeuwarden.
Bel ons op 058-2650063 voor direct contact. Of laat je gegevens achter en wij nemen zo snel mogelijk contact met je op.














































































Refresh to make it work.
Refresh to make it work.


