Woning omschrijving
Prachtige locatie bij het water! Wonen in een groene woonomgeving in een goed onderhouden 2/1 kap woning. Aangebouwde GARAGE. De woning is INSTAPKLAAR en gelegen op een royale kavel van 254 m2 eigen grond met een grote achtertuin op het ZUIDEN. Ruime parkeergelegenheid op eigen terrein. De woning is gelegen aan een pleintje, autoluw! Populaire woonstand in Camminghaburen.
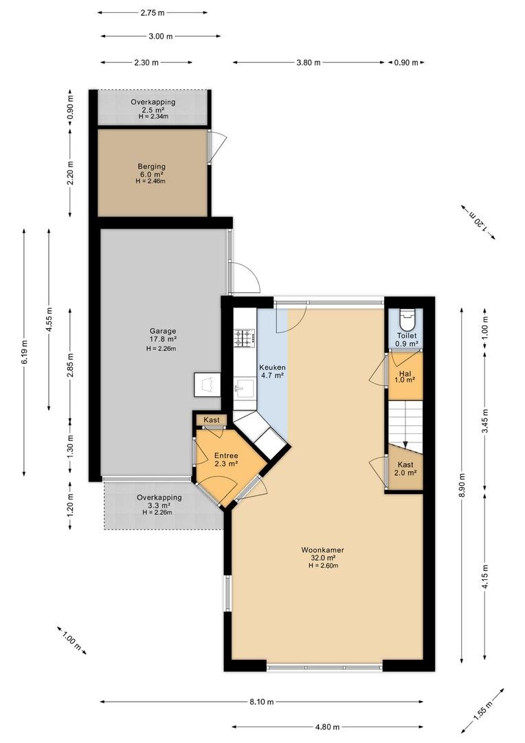
Indeling:
Begane grond: zijentree, hal, ruime woonkamer met open keuken; gemoderniseerde keuken voorzien van apparatuur, provisiekast, tussenhal met toilet.
1e verdieping: overloop, 3 slaapkamers en gemoderniseerde badkamer met ligbad/douche en wastafelmeubel, vaste trap naar de 2e verdieping.
2e verdieping: ruime zolder, thans in gebruik als slaapruimte.
Bijzonderheden:
- keurig onderhouden woning, instapklaar
- prachtig uitzicht op het water
- gemoderniseerde keuken en gemoderniseerde badkamer
- energielabel C
- gedeeltelijk isolerende beglazing
- CV combiketel 2021 (huur)
- ruime garage met wasgelegenheid
- garage ook via binnen te bereiken
- aangebouwde extra berging
- achtertuin op het zuiden
- mooie grote voortuin
- ruime zolder, thans in gebruik als slaapruimte.
De verkoopinformatie is door ons met de nodige zorgvuldigheid samengesteld. Onzerzijds wordt echter geen enkele aansprakelijkheid aanvaard voor enige onvolledigheid, onjuistheid of anderszins, dan wel de gevolgen daarvan. Alle opgegeven maten en oppervlakten zijn indicatief. Koper heeft zijn eigen onderzoek plicht naar alle zaken die voor hem of haar van belang zijn. Met betrekking tot deze woning is de makelaar adviseur van verkoper. Wij adviseren u een deskundige (NVM-)makelaar in te schakelen die u begeleidt bij het aankoopproces. Indien u specifieke wensen heeft omtrent de woning, adviseren wij u deze tijdig kenbaar te maken en hiernaar zelfstandig onderzoek te (laten) doen. Van toepassing zijn de NVM voorwaarden.
Scheenstra Makelaars staat niet in voor de juistheid van de plattegronden en aanvaardt hiervoor geen aansprakelijkheid.
Volledige omschrijving
Minder omschrijving
Indeling:
Begane grond: zijentree, hal, ruime woonkamer met open keuken; gemoderniseerde keuken voorzien van apparatuur, provisiekast, tussenhal met toilet.
1e verdieping: overloop, 3 slaapkamers en gemoderniseerde badkamer met ligbad/douche en wastafelmeubel, vaste trap naar de 2e verdieping.
2e verdieping: ruime zolder, thans in gebruik als slaapruimte.
Bijzonderheden:
- keurig onderhouden woning, instapklaar
- prachtig uitzicht op het water
- gemoderniseerde keuken en gemoderniseerde badkamer
- energielabel C
- gedeeltelijk isolerende beglazing
- CV combiketel 2021 (huur)
- ruime garage met wasgelegenheid
- garage ook via binnen te bereiken
- aangebouwde extra berging
- achtertuin op het zuiden
- mooie grote voortuin
- ruime zolder, thans in gebruik als slaapruimte.
De verkoopinformatie is door ons met de nodige zorgvuldigheid samengesteld. Onzerzijds wordt echter geen enkele aansprakelijkheid aanvaard voor enige onvolledigheid, onjuistheid of anderszins, dan wel de gevolgen daarvan. Alle opgegeven maten en oppervlakten zijn indicatief. Koper heeft zijn eigen onderzoek plicht naar alle zaken die voor hem of haar van belang zijn. Met betrekking tot deze woning is de makelaar adviseur van verkoper. Wij adviseren u een deskundige (NVM-)makelaar in te schakelen die u begeleidt bij het aankoopproces. Indien u specifieke wensen heeft omtrent de woning, adviseren wij u deze tijdig kenbaar te maken en hiernaar zelfstandig onderzoek te (laten) doen. Van toepassing zijn de NVM voorwaarden.
Scheenstra Makelaars staat niet in voor de juistheid van de plattegronden en aanvaardt hiervoor geen aansprakelijkheid.
Woning kenmerken
| Type | Eengezinswoning, Woonruimte, Twee onder een kapwoning |
|---|---|
| Bouwvorm | bestaande bouw |
| Woonoppervlakte | 87 m² |
| Perceeloppervlakte | 254 m² |
| Energielabel | C |
| Bouwjaar | 1982 |
Eysmastate 22
Leeuwarden
€ 325.000 k.k.
Interesse in Eysmastate 22, Leeuwarden?

Ate Scheenstra
de makelaar voor deze woning
| 058-2650063 | |
| [email protected] |
Refresh to make it work.
Interesse?
Plan een bezichtiging voor Eysmastate 22, Leeuwarden.
Bel ons op 058-2650063 voor direct contact. Of laat je gegevens achter en wij nemen zo snel mogelijk contact met je op.




































































































Refresh to make it work.
Refresh to make it work.


