Woning omschrijving
Thuiskomen op een fijne plek. Op een rustige en geliefde woonstand in Leeuwarden staat deze verzorgde en instapklare twee-onder-een-kapwoning, een huis waar je je direct thuis voelt. Met een eigen oprit, een royale achtertuin en verrassend veel leefruimte is dit een ideale plek voor wie comfortabel en zorgeloos wil wonen. Bij binnenkomst valt meteen de nette afwerking en prettige sfeer op. De lichte woonkamer vormt het hart van het huis. De gemoderniseerde keuken sluit hier mooi op aan en is praktisch ingericht voor dagelijks gemak. Aangrenzend bevindt zich de aangebouwde bijkeuken, ideaal voor extra opslag en huishoudelijke apparatuur. Het luxe afgewerkte toilet op de begane grond onderstreept het verzorgde karakter van de woning. Op de eerste verdieping bevinden zich drie comfortabele slaapkamers en een luxe badkamer, compleet met modern wastafelmeubel, douche en een tweede toilet. De vaste trap leidt naar de zolderverdieping waar een royale extra slaapruimte is gerealiseerd – perfect als vierde slaapkamer, thuiswerkplek of hobbyruimte. Buiten is het minstens zo prettig. De grote achtertuin biedt volop privacy en ruimte om te genieten van het buitenleven. De voormalige garage, nu in gebruik als bergruimte (met lichtkoepel) met een achterdeur naar de tuin, maakt het geheel extra praktisch. Parkeren doe je eenvoudig op de eigen oprit. Dankzij het goede onderhoud en de grotendeels kunststof kozijnen met isolerende beglazing is deze woning helemaal klaar voor de volgende bewoners. Hier hoef je alleen nog maar je meubels neer te zetten en te genieten.
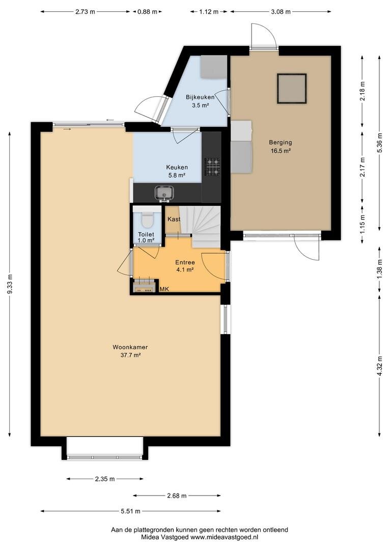
Indeling:
Begane grond: zijentree, hal, luxe toilet, ruime woonkamer met open keuken; gemoderniseerde hoekkeuken met inbouwapparatuur, bijkeuken, royale berging met lichtkoepel (voormalige garage).
1e verdieping: overloop, 3 ruime slaapkamers en ruime luxe badkamer met wastafelmeubel, douche en 2e toilet, vaste trap naar de 2e verdieping.
2e verdieping: royale zolder, thans in gebruik als slaapruimte.
Bijzonderheden:
- gewilde woonstand in Leeuwarden
- instapklare 2/1-kapwoning
- 266 m² eigen grond
- bouwjaar 1989
- CV combiketel 2021
- grotendeels kunststof kozijnen (Wijnsma) met isolerende beglazing
- eigen oprit
- gemoderniseerde keuken
- luxe toilet en badkamer (met 2e toilet)
- 3 slaapkamers + royale zolder (in gebruik als slaapruimte)
- aangebouwde bijkeuken
- berging (voormalige garage) met lichtkoepel
- grote achtertuin.
De verkoopinformatie is door ons met de nodige zorgvuldigheid samengesteld. Onzerzijds wordt echter geen enkele aansprakelijkheid aanvaard voor enige onvolledigheid, onjuistheid of anderszins, dan wel de gevolgen daarvan. Alle opgegeven maten en oppervlakten zijn indicatief. Koper heeft zijn eigen onderzoek plicht naar alle zaken die voor hem of haar van belang zijn. Met betrekking tot deze woning is de makelaar adviseur van verkoper. Wij adviseren u een deskundige (NVM-)makelaar in te schakelen die u begeleidt bij het aankoopproces. Indien u specifieke wensen heeft omtrent de woning, adviseren wij u deze tijdig kenbaar te maken en hiernaar zelfstandig onderzoek te (laten) doen. Van toepassing zijn de NVM voorwaarden.
Scheenstra Makelaars staat niet in voor de juistheid van de plattegronden en aanvaardt hiervoor geen aansprakelijkheid.
Volledige omschrijving
Minder omschrijving
Indeling:
Begane grond: zijentree, hal, luxe toilet, ruime woonkamer met open keuken; gemoderniseerde hoekkeuken met inbouwapparatuur, bijkeuken, royale berging met lichtkoepel (voormalige garage).
1e verdieping: overloop, 3 ruime slaapkamers en ruime luxe badkamer met wastafelmeubel, douche en 2e toilet, vaste trap naar de 2e verdieping.
2e verdieping: royale zolder, thans in gebruik als slaapruimte.
Bijzonderheden:
- gewilde woonstand in Leeuwarden
- instapklare 2/1-kapwoning
- 266 m² eigen grond
- bouwjaar 1989
- CV combiketel 2021
- grotendeels kunststof kozijnen (Wijnsma) met isolerende beglazing
- eigen oprit
- gemoderniseerde keuken
- luxe toilet en badkamer (met 2e toilet)
- 3 slaapkamers + royale zolder (in gebruik als slaapruimte)
- aangebouwde bijkeuken
- berging (voormalige garage) met lichtkoepel
- grote achtertuin.
De verkoopinformatie is door ons met de nodige zorgvuldigheid samengesteld. Onzerzijds wordt echter geen enkele aansprakelijkheid aanvaard voor enige onvolledigheid, onjuistheid of anderszins, dan wel de gevolgen daarvan. Alle opgegeven maten en oppervlakten zijn indicatief. Koper heeft zijn eigen onderzoek plicht naar alle zaken die voor hem of haar van belang zijn. Met betrekking tot deze woning is de makelaar adviseur van verkoper. Wij adviseren u een deskundige (NVM-)makelaar in te schakelen die u begeleidt bij het aankoopproces. Indien u specifieke wensen heeft omtrent de woning, adviseren wij u deze tijdig kenbaar te maken en hiernaar zelfstandig onderzoek te (laten) doen. Van toepassing zijn de NVM voorwaarden.
Scheenstra Makelaars staat niet in voor de juistheid van de plattegronden en aanvaardt hiervoor geen aansprakelijkheid.
Woning kenmerken
| Type | Eengezinswoning, Woonruimte, Twee onder een kapwoning |
|---|---|
| Bouwvorm | bestaande bouw |
| Woonoppervlakte | 116 m² |
| Perceeloppervlakte | 266 m² |
| Energielabel | C |
| Bouwjaar | 1989 |
Gratingastins 3
Leeuwarden
€ 375.000 k.k.
Vragen over Gratingastins 3, Leeuwarden?

Ate Scheenstra
de makelaar voor deze woning
| 058-2650063 | |
| [email protected] |
Refresh to make it work.
Vragen over Gratingastins 3, LEEUWARDEN?
Bel ons op 058-2650063 voor direct contact of maak een afspraak via ons contactformulier.










































































Refresh to make it work.
Refresh to make it work.


