Woning omschrijving
Instapklaar wonen bij het water – ruimte, comfort en luxe in één! Aan de Johan Winklerwei 337 in Leeuwarden staat deze verrassend ruime en moderne gezinswoning met aanbouw, waar je zó in kunt trekken. Het enige wat nog rest: jouw favoriete vloer uitkiezen en verhuizen!
De woning biedt met maar liefst 145 m² woonoppervlakte en 5 ruime slaapkamers alle ruimte voor een gezin, thuiswerken of hobby’s. Dankzij de royale aanbouw geniet je van extra leefruimte, prachtig lichtinval via de lichtkoepels én een directe verbinding met de tuin via de schuifpui. De moderne keuken is ruim opgezet en voorzien van diverse inbouwapparatuur – een heerlijke plek om te koken en samen te komen. De luxe badkamer beschikt over een douche, ligbad en tweede toilet, wat zorgt voor extra comfort in het dagelijks gebruik. Wat deze woning extra aantrekkelijk maakt, is het hoge afwerkingsniveau en de duurzame voorzieningen. Zo zijn de begane grond en eerste verdieping uitgerust met vloerverwarming, is de woning goed geïsoleerd (dak-, muur- en vloerisolatie) en voorzien van HR++ beglazing, deels kunststofkozijnen. Met 10 zonnepanelen en energielabel B ben je bovendien klaar voor de toekomst. De woning ligt op een perceel van 167 m² eigen grond en beschikt over een verzorgde achtertuin op het westen. De overkapping aan de achtergevel maakt het mogelijk om het hele jaar door buiten te zitten. Daarnaast is er een aangebouwde stenen berging voor extra opslagruimte. En als kers op de taart: de ligging bij het water zorgt voor een vrij en rustgevend gevoel. Kortom: een complete, ruime en comfortabele woning op een fijne locatie, waar je zonder klussen kunt starten met genieten.
Indeling:
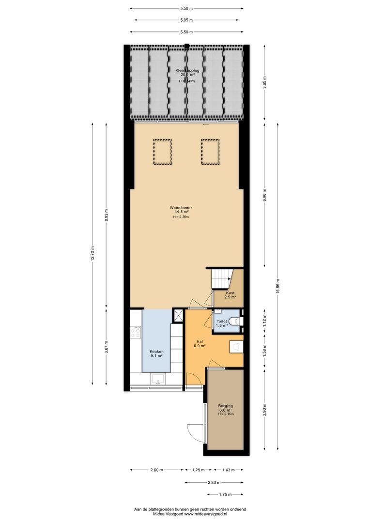
Begane grond: hal, wasgelegenheid, berging, modern toilet, ruime tuingerichte woonkamer met open keuken; royale moderne keuken voorzien van apparatuur.
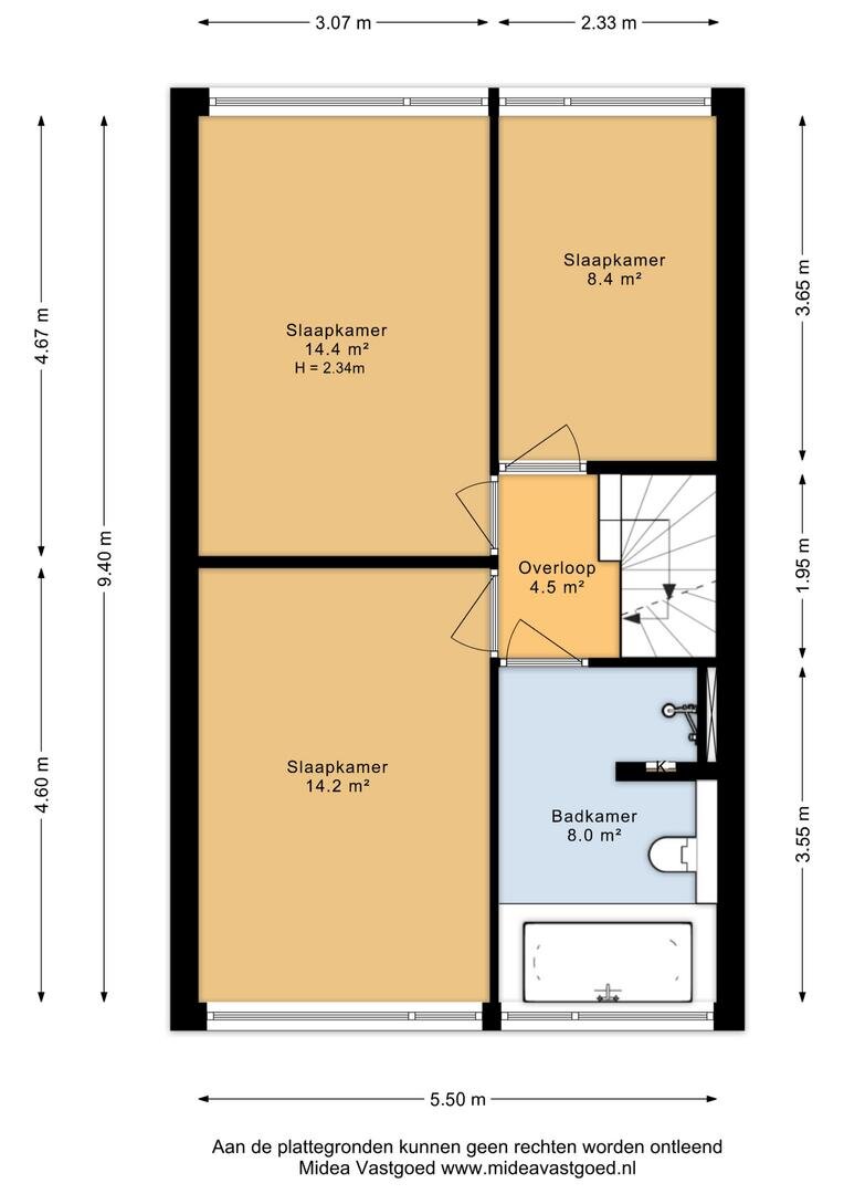
1e verdieping: overloop, 3 ruime slaapkamers en een grote luxe badkamer met ligbad, douche en 2e toilet, vaste trap naar de 2e verdieping.
2e verdieping: overloop en 2 royale slaapkamers met dakkapel.
Bijzonderheden:
- vloer uitzoeken en verhuizen!
- vloerverwarming op de begane grond en 1e verdieping
- royale aanbouw met lichtkoepels
- dakkapel op de achtergevel
- ligging bij het water
- achtertuin op het westen
- 5 ruime slaapkamers
- royale living begane grond
- moderne keuken
- luxe toilet
- luxe ruime badkamer
- CV 2026
- aangebouwde berging
- de woning ligt aan een pleintje aan het eind van de straat
- de foto's, video en plattegronden geven een goed beeld van deze prachtige woning.
De verkoopinformatie is door ons met de nodige zorgvuldigheid samengesteld. Onzerzijds wordt echter geen enkele aansprakelijkheid aanvaard voor enige onvolledigheid, onjuistheid of anderszins, dan wel de gevolgen daarvan. Alle opgegeven maten en oppervlakten zijn indicatief. Koper heeft zijn eigen onderzoek plicht naar alle zaken die voor hem of haar van belang zijn. Met betrekking tot deze woning is de makelaar adviseur van verkoper. Wij adviseren u een deskundige (NVM-)makelaar in te schakelen die u begeleidt bij het aankoopproces. Indien u specifieke wensen heeft omtrent de woning, adviseren wij u deze tijdig kenbaar te maken en hiernaar zelfstandig onderzoek te (laten) doen. Van toepassing zijn de NVM voorwaarden.
Scheenstra Makelaars staat niet in voor de juistheid van de plattegronden en aanvaardt hiervoor geen aansprakelijkheid.
Volledige omschrijving
Minder omschrijving
De woning biedt met maar liefst 145 m² woonoppervlakte en 5 ruime slaapkamers alle ruimte voor een gezin, thuiswerken of hobby’s. Dankzij de royale aanbouw geniet je van extra leefruimte, prachtig lichtinval via de lichtkoepels én een directe verbinding met de tuin via de schuifpui. De moderne keuken is ruim opgezet en voorzien van diverse inbouwapparatuur – een heerlijke plek om te koken en samen te komen. De luxe badkamer beschikt over een douche, ligbad en tweede toilet, wat zorgt voor extra comfort in het dagelijks gebruik. Wat deze woning extra aantrekkelijk maakt, is het hoge afwerkingsniveau en de duurzame voorzieningen. Zo zijn de begane grond en eerste verdieping uitgerust met vloerverwarming, is de woning goed geïsoleerd (dak-, muur- en vloerisolatie) en voorzien van HR++ beglazing, deels kunststofkozijnen. Met 10 zonnepanelen en energielabel B ben je bovendien klaar voor de toekomst. De woning ligt op een perceel van 167 m² eigen grond en beschikt over een verzorgde achtertuin op het westen. De overkapping aan de achtergevel maakt het mogelijk om het hele jaar door buiten te zitten. Daarnaast is er een aangebouwde stenen berging voor extra opslagruimte. En als kers op de taart: de ligging bij het water zorgt voor een vrij en rustgevend gevoel. Kortom: een complete, ruime en comfortabele woning op een fijne locatie, waar je zonder klussen kunt starten met genieten.
Indeling:
Begane grond: hal, wasgelegenheid, berging, modern toilet, ruime tuingerichte woonkamer met open keuken; royale moderne keuken voorzien van apparatuur.
1e verdieping: overloop, 3 ruime slaapkamers en een grote luxe badkamer met ligbad, douche en 2e toilet, vaste trap naar de 2e verdieping.
2e verdieping: overloop en 2 royale slaapkamers met dakkapel.
Bijzonderheden:
- vloer uitzoeken en verhuizen!
- vloerverwarming op de begane grond en 1e verdieping
- royale aanbouw met lichtkoepels
- dakkapel op de achtergevel
- ligging bij het water
- achtertuin op het westen
- 5 ruime slaapkamers
- royale living begane grond
- moderne keuken
- luxe toilet
- luxe ruime badkamer
- CV 2026
- aangebouwde berging
- de woning ligt aan een pleintje aan het eind van de straat
- de foto's, video en plattegronden geven een goed beeld van deze prachtige woning.
De verkoopinformatie is door ons met de nodige zorgvuldigheid samengesteld. Onzerzijds wordt echter geen enkele aansprakelijkheid aanvaard voor enige onvolledigheid, onjuistheid of anderszins, dan wel de gevolgen daarvan. Alle opgegeven maten en oppervlakten zijn indicatief. Koper heeft zijn eigen onderzoek plicht naar alle zaken die voor hem of haar van belang zijn. Met betrekking tot deze woning is de makelaar adviseur van verkoper. Wij adviseren u een deskundige (NVM-)makelaar in te schakelen die u begeleidt bij het aankoopproces. Indien u specifieke wensen heeft omtrent de woning, adviseren wij u deze tijdig kenbaar te maken en hiernaar zelfstandig onderzoek te (laten) doen. Van toepassing zijn de NVM voorwaarden.
Scheenstra Makelaars staat niet in voor de juistheid van de plattegronden en aanvaardt hiervoor geen aansprakelijkheid.
Woning kenmerken
| Type | Eengezinswoning, Woonruimte, Tussenwoning |
|---|---|
| Bouwvorm | bestaande bouw |
| Woonoppervlakte | 145 m² |
| Perceeloppervlakte | 167 m² |
| Energielabel | B |
| Bouwjaar | 1974 |
Johan Winklerwei 337
Leeuwarden
€ 389.500 k.k.
Interesse in Johan Winklerwei 337, Leeuwarden?

Ate Scheenstra
de makelaar voor deze woning
| 058-2650063 | |
| [email protected] |
Refresh to make it work.
Interesse?
Plan een bezichtiging voor Johan Winklerwei 337, Leeuwarden.
Bel ons op 058-2650063 voor direct contact. Of laat je gegevens achter en wij nemen zo snel mogelijk contact met je op.










































































































Refresh to make it work.
Refresh to make it work.


