Woning omschrijving
Sfeervol, instapklaar en vol karakter – wonen op een toplocatie nabij de Noorderhaven!
Stap binnen in deze charmante tussenwoning aan de Karremanstraat 20, waar karakter en comfort perfect samenkomen. Met zijn authentieke gevel, moderne afwerking en ligging op loopafstand van de Noorderhaven en de binnenstad van Harlingen, is dit de ideale plek voor wie sfeervol en zorgeloos wil wonen. De woonkamer straalt warmte uit dankzij de combinatie van karakteristieke details en moderne gemakken. De begane grond is voorzien van vloerverwarming en HR++ beglazing, waardoor het huis comfortabel en energiezuinig is (energielabel C). De moderne keuken is compleet uitgerust met inbouwapparatuur – ideaal voor de kookliefhebber. Op de verdieping vind je een overloop met bergkast, slaapkamer en een badkamer met douche en wasgelegenheid. Alles is keurig onderhouden en direct te betrekken: instapklaar dus! Het wooncomfort wordt versterkt door vloer-, muur- én dakisolatie. De CV-ketel (2020) zorgt voor betrouwbare verwarming, terwijl het energielabel C en de vloerverwarming bijdragen aan lage woonlasten.
De ligging is simpelweg perfect: in een sfeervolle, historische straat, vlakbij de Noorderhaven en de gezellige binnenstad. De Zoutsloot ligt letterlijk om de hoek, en alle dagelijkse voorzieningen zijn binnen enkele minuten bereikbaar. Een heerlijke woonplek in een karakteristieke omgeving.
Waarom Karremanstraat 20?
- instapklaar en goed onderhouden
- authentieke gevel en moderne afwerking
- vloerverwarming op de begane grond
- HR++ beglazing begane grond en verdieping
- CV-ketel uit 2020
- gelegen op loopafstand van de Noorderhaven en het centrum
- sfeervolle, karakteristieke woonomgeving
Kortom: een unieke kans om sfeervol te wonen in een van de leukste straten van Harlingen – waar historie, comfort en gemak samenkomen.
De verkoopinformatie is door ons met de nodige zorgvuldigheid samengesteld. Onzerzijds wordt echter geen enkele aansprakelijkheid aanvaard voor enige onvolledigheid, onjuistheid of anderszins, dan wel de gevolgen daarvan. Alle opgegeven maten en oppervlakten zijn indicatief. Koper heeft zijn eigen onderzoek plicht naar alle zaken die voor hem of haar van belang zijn. Met betrekking tot deze woning is de makelaar adviseur van verkoper. Wij adviseren u een deskundige (NVM-)makelaar in te schakelen die u begeleidt bij het aankoopproces. Indien u specifieke wensen heeft omtrent de woning, adviseren wij u deze tijdig kenbaar te maken en hiernaar zelfstandig onderzoek te (laten) doen. Van toepassing zijn de NVM voorwaarden.
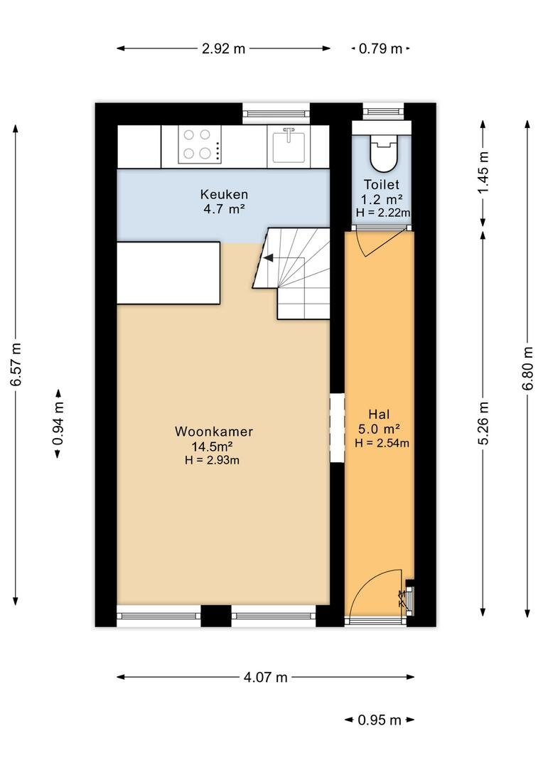
Scheenstra Makelaars staat niet in voor de juistheid van de plattegronden en aanvaardt hiervoor geen aansprakelijkheid.
Volledige omschrijving
Minder omschrijving
Stap binnen in deze charmante tussenwoning aan de Karremanstraat 20, waar karakter en comfort perfect samenkomen. Met zijn authentieke gevel, moderne afwerking en ligging op loopafstand van de Noorderhaven en de binnenstad van Harlingen, is dit de ideale plek voor wie sfeervol en zorgeloos wil wonen. De woonkamer straalt warmte uit dankzij de combinatie van karakteristieke details en moderne gemakken. De begane grond is voorzien van vloerverwarming en HR++ beglazing, waardoor het huis comfortabel en energiezuinig is (energielabel C). De moderne keuken is compleet uitgerust met inbouwapparatuur – ideaal voor de kookliefhebber. Op de verdieping vind je een overloop met bergkast, slaapkamer en een badkamer met douche en wasgelegenheid. Alles is keurig onderhouden en direct te betrekken: instapklaar dus! Het wooncomfort wordt versterkt door vloer-, muur- én dakisolatie. De CV-ketel (2020) zorgt voor betrouwbare verwarming, terwijl het energielabel C en de vloerverwarming bijdragen aan lage woonlasten.
De ligging is simpelweg perfect: in een sfeervolle, historische straat, vlakbij de Noorderhaven en de gezellige binnenstad. De Zoutsloot ligt letterlijk om de hoek, en alle dagelijkse voorzieningen zijn binnen enkele minuten bereikbaar. Een heerlijke woonplek in een karakteristieke omgeving.
Waarom Karremanstraat 20?
- instapklaar en goed onderhouden
- authentieke gevel en moderne afwerking
- vloerverwarming op de begane grond
- HR++ beglazing begane grond en verdieping
- CV-ketel uit 2020
- gelegen op loopafstand van de Noorderhaven en het centrum
- sfeervolle, karakteristieke woonomgeving
Kortom: een unieke kans om sfeervol te wonen in een van de leukste straten van Harlingen – waar historie, comfort en gemak samenkomen.
De verkoopinformatie is door ons met de nodige zorgvuldigheid samengesteld. Onzerzijds wordt echter geen enkele aansprakelijkheid aanvaard voor enige onvolledigheid, onjuistheid of anderszins, dan wel de gevolgen daarvan. Alle opgegeven maten en oppervlakten zijn indicatief. Koper heeft zijn eigen onderzoek plicht naar alle zaken die voor hem of haar van belang zijn. Met betrekking tot deze woning is de makelaar adviseur van verkoper. Wij adviseren u een deskundige (NVM-)makelaar in te schakelen die u begeleidt bij het aankoopproces. Indien u specifieke wensen heeft omtrent de woning, adviseren wij u deze tijdig kenbaar te maken en hiernaar zelfstandig onderzoek te (laten) doen. Van toepassing zijn de NVM voorwaarden.
Scheenstra Makelaars staat niet in voor de juistheid van de plattegronden en aanvaardt hiervoor geen aansprakelijkheid.
Woning kenmerken
| Type | Eengezinswoning, Woonruimte, Tussenwoning |
|---|---|
| Bouwvorm | bestaande bouw |
| Woonoppervlakte | 42 m² |
| Perceeloppervlakte | 40 m² |
| Energielabel | C |
| Bouwjaar | 1890 |
Karremanstraat 20
Harlingen
€ 175.000 k.k.
Interesse in Karremanstraat 20, Harlingen?

Ate Scheenstra
de makelaar voor deze woning
| 058-2650063 | |
| [email protected] |
Refresh to make it work.
Interesse?
Plan een bezichtiging voor Karremanstraat 20, Harlingen.
Bel ons op 058-2650063 voor direct contact. Of laat je gegevens achter en wij nemen zo snel mogelijk contact met je op.














































Refresh to make it work.
Refresh to make it work.

