Woning omschrijving
In het geliefde “Witte Dorp” van Camminghaburen staat deze goed onderhouden twee-onder-één-kapwoning met aangebouwde bijkeuken en garage. De garage en bijkeuken zijn tijden de bouw vergroot. De woning is van de eerste eigenaar en dat is te zien: alles is met zorg bewoond en onderhouden. Met een royale kavel van 269 m² eigen grond en een zonnige achtertuin op het zuiden, is dit een heerlijke plek om te wonen. Via de entree kom je in de lichte woonkamer met gezellige houtkachel en een fraai uitzicht op de rustige straat. De open keuken is praktisch ingedeeld en biedt toegang tot de bijkeuken en garage. Op de eerste verdieping bevinden zich momenteel twee royale slaapkamers en een nette badkamer met 2e toilet. Dankzij het grote dakkapel aan de achterzijde is het eenvoudig om een derde slaapkamer te realiseren. De zolderverdieping biedt bovendien volop mogelijkheden voor een extra (slaap)kamer of hobbyruimte. De achtertuin is zonnig gelegen op het zuiden en beschikt over een achterom. Hier geniet je volop van rust, privacy en zonlicht. De woning ligt in een rustige en gewilde woonomgeving met veel groen en waterpartijen. Op loopafstand bevinden zich winkels, scholen en en openbaar vervoer. Bovendien ligt het prachtige recreatiegebied De Groene Ster letterlijk om de hoek — ideaal voor wandelen, fietsen of een dagje buiten.
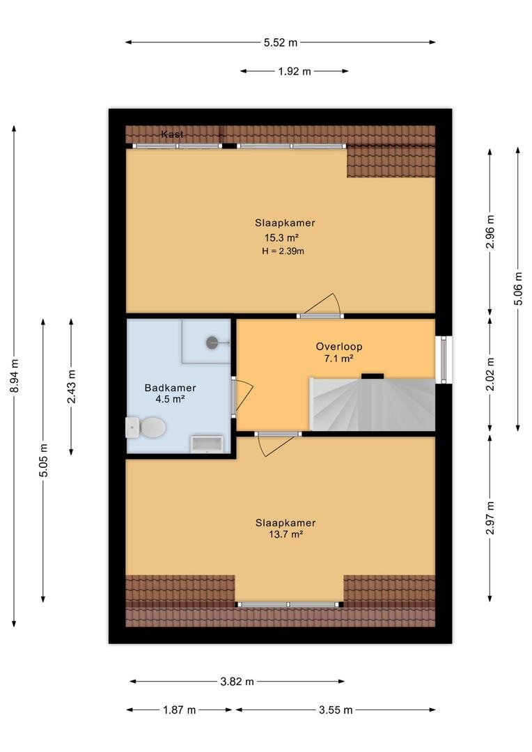
Indeling:
Begane grond: zijentree, hal, toilet, woonkamer met open keuken, bijkeuken en garage.
1e verdieping: overloop, 2 royale slaapkamers en badkamer met douche en 2e toilet, vaste trap naar de 2e verdieping.
2e verdieping: grote zolder met mogelijkheid voor een extra slaapkamer.
Extra’s:
- muur-, vloer- en dakisolatie
- houtkachel in de woonkamer
- zonnige tuin op het zuiden
- grote kavel van 269 m²
- garage en bijkeuken tijdens de bouw vergroot
- mogelijkheid tot 4 slaapkamers
- gelegen nabij recreatiegebied De Groene Ster
- de foto's, video en plattegronden geven een goed beeld van deze mooie woning!
De verkoopinformatie is door ons met de nodige zorgvuldigheid samengesteld. Onzerzijds wordt echter geen enkele aansprakelijkheid aanvaard voor enige onvolledigheid, onjuistheid of anderszins, dan wel de gevolgen daarvan. Alle opgegeven maten en oppervlakten zijn indicatief. Koper heeft zijn eigen onderzoek plicht naar alle zaken die voor hem of haar van belang zijn. Met betrekking tot deze woning is de makelaar adviseur van verkoper. Wij adviseren u een deskundige (NVM-)makelaar in te schakelen die u begeleidt bij het aankoopproces. Indien u specifieke wensen heeft omtrent de woning, adviseren wij u deze tijdig kenbaar te maken en hiernaar zelfstandig onderzoek te (laten) doen. Van toepassing zijn de NVM voorwaarden.
Scheenstra Makelaars staat niet in voor de juistheid van de plattegronden en aanvaardt hiervoor geen aansprakelijkheid.
Volledige omschrijving
Minder omschrijving
Indeling:
Begane grond: zijentree, hal, toilet, woonkamer met open keuken, bijkeuken en garage.
1e verdieping: overloop, 2 royale slaapkamers en badkamer met douche en 2e toilet, vaste trap naar de 2e verdieping.
2e verdieping: grote zolder met mogelijkheid voor een extra slaapkamer.
Extra’s:
- muur-, vloer- en dakisolatie
- houtkachel in de woonkamer
- zonnige tuin op het zuiden
- grote kavel van 269 m²
- garage en bijkeuken tijdens de bouw vergroot
- mogelijkheid tot 4 slaapkamers
- gelegen nabij recreatiegebied De Groene Ster
- de foto's, video en plattegronden geven een goed beeld van deze mooie woning!
De verkoopinformatie is door ons met de nodige zorgvuldigheid samengesteld. Onzerzijds wordt echter geen enkele aansprakelijkheid aanvaard voor enige onvolledigheid, onjuistheid of anderszins, dan wel de gevolgen daarvan. Alle opgegeven maten en oppervlakten zijn indicatief. Koper heeft zijn eigen onderzoek plicht naar alle zaken die voor hem of haar van belang zijn. Met betrekking tot deze woning is de makelaar adviseur van verkoper. Wij adviseren u een deskundige (NVM-)makelaar in te schakelen die u begeleidt bij het aankoopproces. Indien u specifieke wensen heeft omtrent de woning, adviseren wij u deze tijdig kenbaar te maken en hiernaar zelfstandig onderzoek te (laten) doen. Van toepassing zijn de NVM voorwaarden.
Scheenstra Makelaars staat niet in voor de juistheid van de plattegronden en aanvaardt hiervoor geen aansprakelijkheid.
Woning kenmerken
| Type | Eengezinswoning, Woonruimte, Twee onder een kapwoning |
|---|---|
| Bouwvorm | bestaande bouw |
| Woonoppervlakte | 106 m² |
| Perceeloppervlakte | 269 m² |
| Energielabel | C |
| Bouwjaar | 1990 |
Keimpemastins 16
Leeuwarden
€ 389.000 k.k.
Interesse in Keimpemastins 16, Leeuwarden?

Ate Scheenstra
de makelaar voor deze woning
| 058-2650063 | |
| [email protected] |
Refresh to make it work.
Interesse?
Plan een bezichtiging voor Keimpemastins 16, Leeuwarden.
Bel ons op 058-2650063 voor direct contact. Of laat je gegevens achter en wij nemen zo snel mogelijk contact met je op.






































































Refresh to make it work.
Refresh to make it work.


