Woning omschrijving
In een rustige, autoluwe straat staat deze fijne tussenwoning met een verrassend ruime indeling op de 1e en 2e verdieping, vier volwaardige slaapkamers en een zonnige tuin op het westen. Een ideale gezinswoning op een prettige locatie in Camminghaburen! De woning is gebouwd in 1980 en staat op 128 m² eigen grond. Dankzij het gunstige energielabel A, 12 zonnepanelen en een CV-combiketel uit 2023 is de woning toekomstbestendig én energiezuinig. Dat merk je direct in het wooncomfort en op de maandlasten. Binnenkomend via de hal vind je de woonkamer met de keuken aan de tuinzijde. De achtertuin, gelegen op het westen, biedt veel middag- en avondzon. De achterom maakt het geheel extra praktisch. Op de eerste verdieping bevinden zich drie goed bemeten slaapkamers en een ruime badkamer, uitgerust met een douche, wastafel en een tweede toilet. De zolderverdieping biedt een vierde slaapkamer met volop ruimte. De ligging is ideaal: een kindvriendelijke woonomgeving met scholen, winkels en openbaar vervoer in de buurt. Ook de uitvalswegen zijn snel bereikbaar.
Indeling:
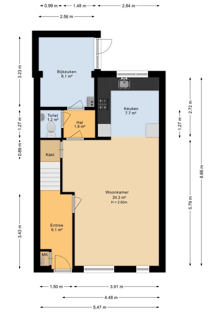
Begane grond: hal, straatgerichte woonkamer met open keuken, tussenhal met toilet, ruime bijkeuken/berging.
1e verdieping: overloop, 3 ruime slaapkamers en een royale badkamer met douche en 2e toilet, vaste trap naar de 2e verdieping.
2e verdieping: overloop en grote 4e slaapkamer.
Pluspunten op een rij:
- autoluwe, rustige straat
- gezinswoning met vier ruime slaapkamers
- achtertuin op het westen met achterom
- natuurgebied De Groene Ster op kort afstand gelegen
- energielabel A
- 12 zonnepanelen
- CV-combiketel 2023
- 128 m² eigen grond
- ruime badkamer met douche en 2e toilet
- bouwjaar 1980
Ben je op zoek naar een energiezuinige en ruime gezinswoning op een aantrekkelijke plek in Leeuwarden? Dan is Kippenburg 12 zeker een bezichtiging waard!
De verkoopinformatie is door ons met de nodige zorgvuldigheid samengesteld. Onzerzijds wordt echter geen enkele aansprakelijkheid aanvaard voor enige onvolledigheid, onjuistheid of anderszins, dan wel de gevolgen daarvan. Alle opgegeven maten en oppervlakten zijn indicatief. Koper heeft zijn eigen onderzoek plicht naar alle zaken die voor hem of haar van belang zijn. Met betrekking tot deze woning is de makelaar adviseur van verkoper. Wij adviseren u een deskundige (NVM-)makelaar in te schakelen die u begeleidt bij het aankoopproces. Indien u specifieke wensen heeft omtrent de woning, adviseren wij u deze tijdig kenbaar te maken en hiernaar zelfstandig onderzoek te (laten) doen. Van toepassing zijn de NVM voorwaarden.
Scheenstra Makelaars staat niet in voor de juistheid van de plattegronden en aanvaardt hiervoor geen aansprakelijkheid.
Volledige omschrijving
Minder omschrijving
Indeling:
Begane grond: hal, straatgerichte woonkamer met open keuken, tussenhal met toilet, ruime bijkeuken/berging.
1e verdieping: overloop, 3 ruime slaapkamers en een royale badkamer met douche en 2e toilet, vaste trap naar de 2e verdieping.
2e verdieping: overloop en grote 4e slaapkamer.
Pluspunten op een rij:
- autoluwe, rustige straat
- gezinswoning met vier ruime slaapkamers
- achtertuin op het westen met achterom
- natuurgebied De Groene Ster op kort afstand gelegen
- energielabel A
- 12 zonnepanelen
- CV-combiketel 2023
- 128 m² eigen grond
- ruime badkamer met douche en 2e toilet
- bouwjaar 1980
Ben je op zoek naar een energiezuinige en ruime gezinswoning op een aantrekkelijke plek in Leeuwarden? Dan is Kippenburg 12 zeker een bezichtiging waard!
De verkoopinformatie is door ons met de nodige zorgvuldigheid samengesteld. Onzerzijds wordt echter geen enkele aansprakelijkheid aanvaard voor enige onvolledigheid, onjuistheid of anderszins, dan wel de gevolgen daarvan. Alle opgegeven maten en oppervlakten zijn indicatief. Koper heeft zijn eigen onderzoek plicht naar alle zaken die voor hem of haar van belang zijn. Met betrekking tot deze woning is de makelaar adviseur van verkoper. Wij adviseren u een deskundige (NVM-)makelaar in te schakelen die u begeleidt bij het aankoopproces. Indien u specifieke wensen heeft omtrent de woning, adviseren wij u deze tijdig kenbaar te maken en hiernaar zelfstandig onderzoek te (laten) doen. Van toepassing zijn de NVM voorwaarden.
Scheenstra Makelaars staat niet in voor de juistheid van de plattegronden en aanvaardt hiervoor geen aansprakelijkheid.
Woning kenmerken
| Type | Eengezinswoning, Woonruimte, Tussenwoning |
|---|---|
| Bouwvorm | bestaande bouw |
| Woonoppervlakte | 125 m² |
| Perceeloppervlakte | 128 m² |
| Energielabel | A |
| Bouwjaar | 1980 |
Kippenburg 12
Leeuwarden
€ 275.000 k.k.
Interesse in Kippenburg 12, Leeuwarden?

Ate Scheenstra
de makelaar voor deze woning
| 058-2650063 | |
| [email protected] |
Refresh to make it work.
Interesse?
Plan een bezichtiging voor Kippenburg 12, Leeuwarden.
Bel ons op 058-2650063 voor direct contact. Of laat je gegevens achter en wij nemen zo snel mogelijk contact met je op.












































































Refresh to make it work.
Refresh to make it work.


