Woning omschrijving
Instapklare tussenwoning van het populaire type “Pakhuis”, gelegen in de geliefde woonwijk Aldlân, met een ruime, zonnige achtertuin op het zuiden. Deze woning combineert comfort, ruimte en een gunstige ligging nabij diverse voorzieningen. De entree is aangebouwd, wat zorgt voor extra ruimte in de keuken. De moderne keuken is praktisch ingedeeld en biedt volop werk- en kastruimte. De begane grond is voorzien van vloerverwarming, wat bijdraagt aan een aangenaam wooncomfort. De woning beschikt over vier ruime slaapkamers en een vergrote badkamer met ligbad, douche en een tweede toilet. Dankzij het gunstige energielabel B, kunststofkozijnen met HR++ beglazing en goede isolatie is de woning energiezuinig en onderhoudsarm. De zonnige achtertuin op het zuiden biedt volop mogelijkheden om heerlijk te ontspannen en is voorzien van een stenen berging voor extra opslagruimte.
Indeling:
Begane grond: zijentree. hal met lichtkoepel, toilet, eethoek met moderne keuken voorzien van apparatuur, tuingerichte woonkamer met tuindeuren.
1e verdieping: overloop, ruime slaapkamer van ca. 18 m2 aan de tuinzijde, slaapkamer/hobbykamer/waskamer van ca. 7 m2 aan de voorzijde, vergrote badkamer met ligbad, douche en 2e toilet, vaste trap naar de 2e verdieping.
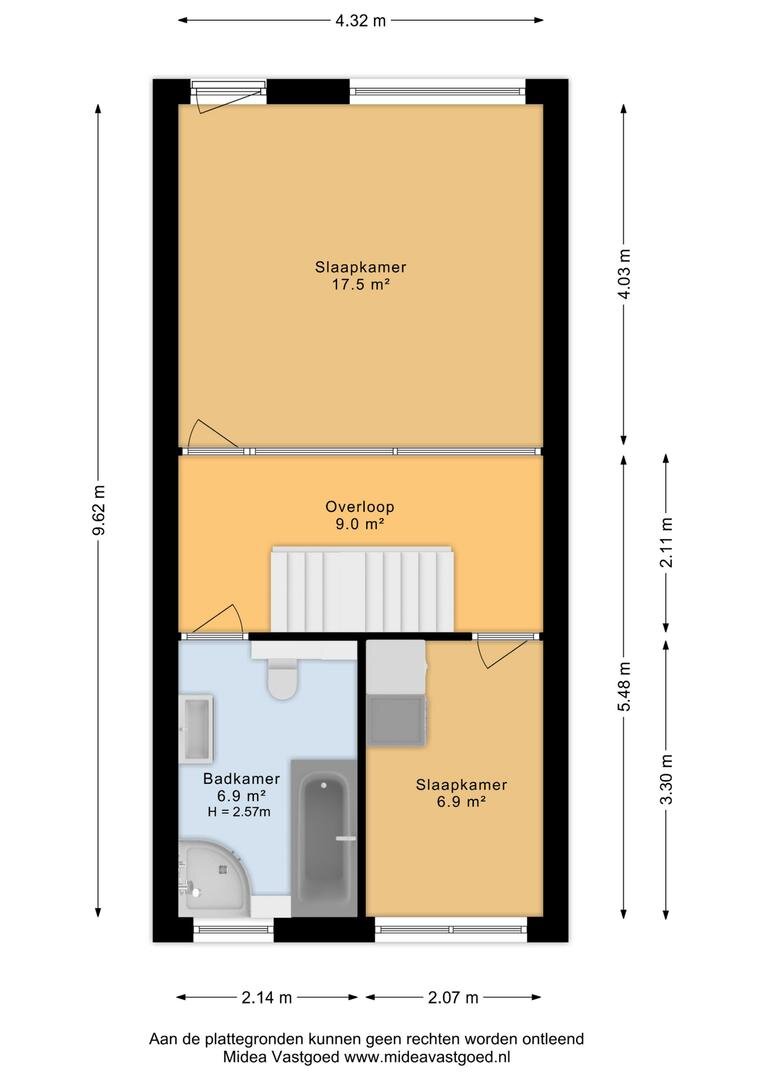
2e verdieping: overloop, 2 royale slaapkamers van ca. 11 en 14 m2 en een inloopkast met CV ruimte.
Kenmerken op een rij:
- instapklare tussenwoning (type Pakhuis)
- grote achtertuin op het zuiden
- moderne keuken met extra ruimte door aangebouwde entree
- begane grond met vloerverwarming
- 4 ruime slaapkamers
- vergrote badkamer met ligbad, douche en 2e toilet
- energielabel B
- 129 m2 eigen grond
- kunststofkozijnen met HR++ beglazing
- aangebouwde stenen berging
- gunstige ligging nabij winkels, scholen en andere voorzieningen
- een ideale woning voor wie comfortabel en zorgeloos wil wonen op een fijne locatie.
Maak snel een afspraak voor een bezichtiging en laat je verrassen!
De verkoopinformatie is door ons met de nodige zorgvuldigheid samengesteld. Onzerzijds wordt echter geen enkele aansprakelijkheid aanvaard voor enige onvolledigheid, onjuistheid of anderszins, dan wel de gevolgen daarvan. Alle opgegeven maten en oppervlakten zijn indicatief. Koper heeft zijn eigen onderzoek plicht naar alle zaken die voor hem of haar van belang zijn. Met betrekking tot deze woning is de makelaar adviseur van verkoper. Wij adviseren u een deskundige (NVM-)makelaar in te schakelen die u begeleidt bij het aankoopproces. Indien u specifieke wensen heeft omtrent de woning, adviseren wij u deze tijdig kenbaar te maken en hiernaar zelfstandig onderzoek te (laten) doen. Van toepassing zijn de NVM voorwaarden.
Scheenstra Makelaars staat niet in voor de juistheid van de plattegronden en aanvaardt hiervoor geen aansprakelijkheid.
Volledige omschrijving
Minder omschrijving
Indeling:
Begane grond: zijentree. hal met lichtkoepel, toilet, eethoek met moderne keuken voorzien van apparatuur, tuingerichte woonkamer met tuindeuren.
1e verdieping: overloop, ruime slaapkamer van ca. 18 m2 aan de tuinzijde, slaapkamer/hobbykamer/waskamer van ca. 7 m2 aan de voorzijde, vergrote badkamer met ligbad, douche en 2e toilet, vaste trap naar de 2e verdieping.
2e verdieping: overloop, 2 royale slaapkamers van ca. 11 en 14 m2 en een inloopkast met CV ruimte.
Kenmerken op een rij:
- instapklare tussenwoning (type Pakhuis)
- grote achtertuin op het zuiden
- moderne keuken met extra ruimte door aangebouwde entree
- begane grond met vloerverwarming
- 4 ruime slaapkamers
- vergrote badkamer met ligbad, douche en 2e toilet
- energielabel B
- 129 m2 eigen grond
- kunststofkozijnen met HR++ beglazing
- aangebouwde stenen berging
- gunstige ligging nabij winkels, scholen en andere voorzieningen
- een ideale woning voor wie comfortabel en zorgeloos wil wonen op een fijne locatie.
Maak snel een afspraak voor een bezichtiging en laat je verrassen!
De verkoopinformatie is door ons met de nodige zorgvuldigheid samengesteld. Onzerzijds wordt echter geen enkele aansprakelijkheid aanvaard voor enige onvolledigheid, onjuistheid of anderszins, dan wel de gevolgen daarvan. Alle opgegeven maten en oppervlakten zijn indicatief. Koper heeft zijn eigen onderzoek plicht naar alle zaken die voor hem of haar van belang zijn. Met betrekking tot deze woning is de makelaar adviseur van verkoper. Wij adviseren u een deskundige (NVM-)makelaar in te schakelen die u begeleidt bij het aankoopproces. Indien u specifieke wensen heeft omtrent de woning, adviseren wij u deze tijdig kenbaar te maken en hiernaar zelfstandig onderzoek te (laten) doen. Van toepassing zijn de NVM voorwaarden.
Scheenstra Makelaars staat niet in voor de juistheid van de plattegronden en aanvaardt hiervoor geen aansprakelijkheid.
Woning kenmerken
| Type | Eengezinswoning, Woonruimte, Tussenwoning |
|---|---|
| Bouwvorm | bestaande bouw |
| Woonoppervlakte | 124 m² |
| Perceeloppervlakte | 129 m² |
| Energielabel | B |
| Bouwjaar | 1973 |
Lenteklokje 97
Leeuwarden
€ 299.000 k.k.
Interesse in Lenteklokje 97, Leeuwarden?

Ate Scheenstra
de makelaar voor deze woning
| 058-2650063 | |
| [email protected] |
Refresh to make it work.
Interesse?
Plan een bezichtiging voor Lenteklokje 97, Leeuwarden.
Bel ons op 058-2650063 voor direct contact. Of laat je gegevens achter en wij nemen zo snel mogelijk contact met je op.




































































Refresh to make it work.
Refresh to make it work.


