Woning omschrijving
Uniek gelegen vrijstaande woning gesitueerd op korte afstand van Leeuwarden – met weids uitzicht en grote schuur. Op slechts enkele minuten van Leeuwarden ligt deze vrijstaande woning, waar je nog kunt genieten van het uitzicht. Vanuit de woning geniet je van een prachtig weids uitzicht over de weilanden – een plek waar je elke dag het buitenleven ervaart, zonder in te leveren op bereikbaarheid. De woning staat op een royaal perceel van maar liefst 1.650 m² eigen grond. Rondom is er volop ruimte om te genieten van het buitenleven. De vrijstaande schuur met zolder biedt extra mogelijkheden: ideaal voor opslag, een werkplaats of het gebruiken voor andere doeleinden. De bouwkundige staat van de schuur verdient aandacht, maar vormt daarmee ook een mooie kans om er iets geheel eigens van te maken. Comfortabel en toekomstgericht wonen. Binnen tref je een woning die is gemoderniseerd. De keuken en badkamer zijn vernieuwd en modern uitgevoerd. Op de begane grond bevindt zich bovendien een slaapkamer, wat de woning ook levensloopbestendig maakt. De zolder biedt ruimte en eventueel de mogelijkheid om een extra kamer te realiseren. De eigenaar heeft de eerste stappen gezet voor wat betreft de verduurzaming: 30 zonnepanelen, airco voor verwarming én koeling. Er is geen gasaansluiting, eventueel is dit wel mogelijk via een externe tank. Muurisolatie, vloerisolatie en HR+ beglazing, de woning is gedeeltelijk al voorbereid op de toekomst. De woning ligt op een rustige, landelijke locatie met volop privacy, maar met Leeuwarden binnen handbereik. Een ideale combinatie van landelijk wonen en stedelijk gemak. Kortom ben jij op zoek naar een woning met veel grond, een prachtig uitzicht en volop mogelijkheden? Dan is dit dé kans om jouw droomplek te vinden, op een unieke locatie vlakbij Leeuwarden. En er is een mooie aangebouwde serre aanwezig!
Indeling:
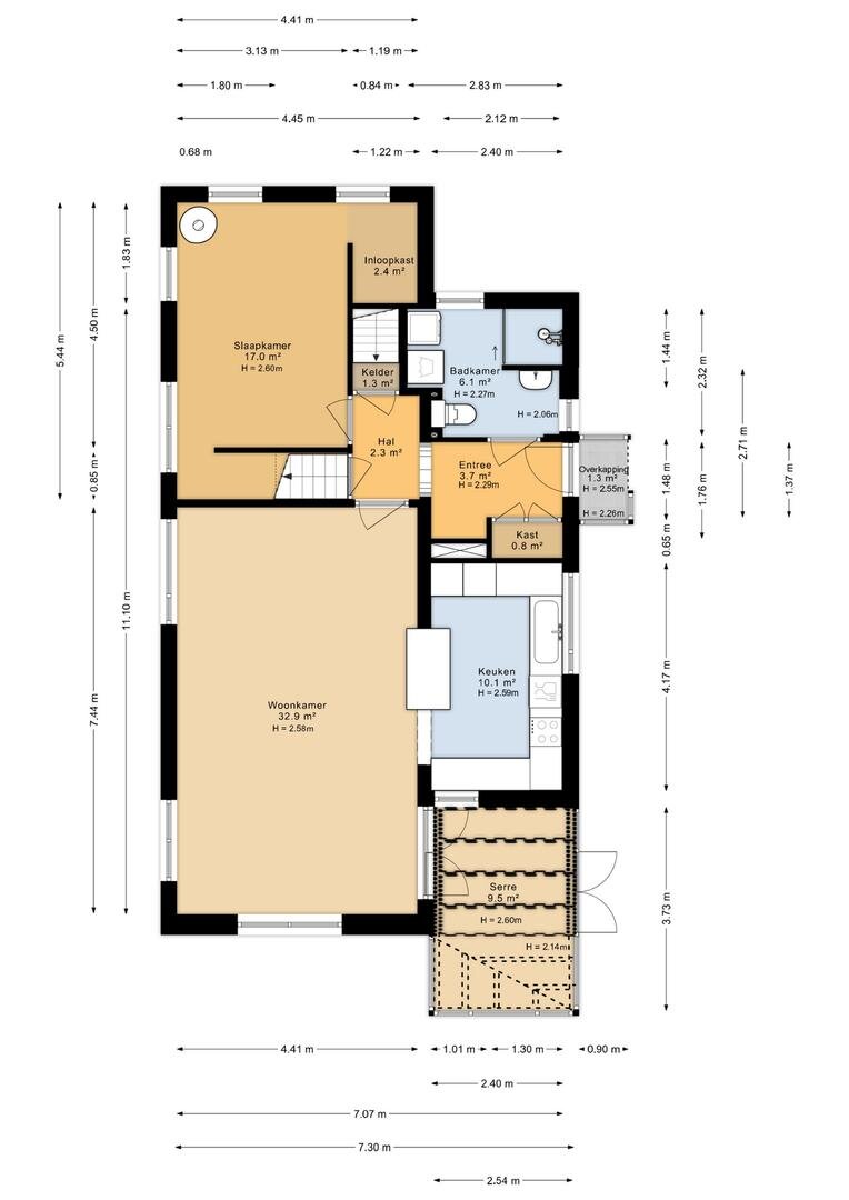
Begane grond: hal, badkamer met douche en toilet, grote slaapkamer met inloopkast, kelder, woonkamer met open keuken en serre.
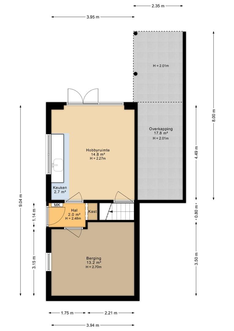
Verdieping: zolder en kamer.
Voordelen op een rij:
- unieke ligging met weids uitzicht over de weilanden
- groot perceel van 1.650 m² eigen grond
- vrijstaande schuur met veel potentie
- kelder
- gasloos en voorzien van 30 zonnepanelen
- verwarming door middel van airco en electrische vloerverwarming
- gemoderniseerde keuken en badkamer op de begane grond
- slaapkamer op de begane grond
- muur-, vloer- en HR+ beglazing
- gedeeltelijk kunststofkozijnen
- de foto's, video en plattegronden geven een goed beeld van deze fraai gelegen woning!
De verkoopinformatie is door ons met de nodige zorgvuldigheid samengesteld. Onzerzijds wordt echter geen enkele aansprakelijkheid aanvaard voor enige onvolledigheid, onjuistheid of anderszins, dan wel de gevolgen daarvan. Alle opgegeven maten en oppervlakten zijn indicatief. Koper heeft zijn eigen onderzoek plicht naar alle zaken die voor hem of haar van belang zijn. Met betrekking tot deze woning is de makelaar adviseur van verkoper. Wij adviseren u een deskundige (NVM-)makelaar in te schakelen die u begeleidt bij het aankoopproces. Indien u specifieke wensen heeft omtrent de woning, adviseren wij u deze tijdig kenbaar te maken en hiernaar zelfstandig onderzoek te (laten) doen. Van toepassing zijn de NVM voorwaarden.
Scheenstra Makelaars staat niet in voor de juistheid van de plattegronden en aanvaardt hiervoor geen aansprakelijkheid.
Volledige omschrijving
Minder omschrijving
Indeling:
Begane grond: hal, badkamer met douche en toilet, grote slaapkamer met inloopkast, kelder, woonkamer met open keuken en serre.
Verdieping: zolder en kamer.
Voordelen op een rij:
- unieke ligging met weids uitzicht over de weilanden
- groot perceel van 1.650 m² eigen grond
- vrijstaande schuur met veel potentie
- kelder
- gasloos en voorzien van 30 zonnepanelen
- verwarming door middel van airco en electrische vloerverwarming
- gemoderniseerde keuken en badkamer op de begane grond
- slaapkamer op de begane grond
- muur-, vloer- en HR+ beglazing
- gedeeltelijk kunststofkozijnen
- de foto's, video en plattegronden geven een goed beeld van deze fraai gelegen woning!
De verkoopinformatie is door ons met de nodige zorgvuldigheid samengesteld. Onzerzijds wordt echter geen enkele aansprakelijkheid aanvaard voor enige onvolledigheid, onjuistheid of anderszins, dan wel de gevolgen daarvan. Alle opgegeven maten en oppervlakten zijn indicatief. Koper heeft zijn eigen onderzoek plicht naar alle zaken die voor hem of haar van belang zijn. Met betrekking tot deze woning is de makelaar adviseur van verkoper. Wij adviseren u een deskundige (NVM-)makelaar in te schakelen die u begeleidt bij het aankoopproces. Indien u specifieke wensen heeft omtrent de woning, adviseren wij u deze tijdig kenbaar te maken en hiernaar zelfstandig onderzoek te (laten) doen. Van toepassing zijn de NVM voorwaarden.
Scheenstra Makelaars staat niet in voor de juistheid van de plattegronden en aanvaardt hiervoor geen aansprakelijkheid.
Woning kenmerken
| Type | Eengezinswoning, Woonruimte, Vrijstaande woning |
|---|---|
| Bouwvorm | bestaande bouw |
| Woonoppervlakte | 110 m² |
| Perceeloppervlakte | 1650 m² |
| Energielabel | G |
| Bouwjaar | 1960 |
Loodyk 1
Wirdum
€ 389.000 k.k.
Vragen over Loodyk 1, Wirdum?

Ate Scheenstra
de makelaar voor deze woning
| 058-2650063 | |
| [email protected] |
Refresh to make it work.
Vragen over Loodyk 1, WIRDUM?
Bel ons op 058-2650063 voor direct contact of maak een afspraak via ons contactformulier.




















































































Refresh to make it work.
Refresh to make it work.



