Woning omschrijving
Wonen aan het water in Camminghaburen – Staniastate 22, Leeuwarden
Op een prachtige en gewilde woonlocatie aan VAARWATER in Camminghaburen staat deze royale twee-onder-één-kapwoning (ca. 148 m² woonoppervlak) met volop ruimte, comfort én schitterend uitzicht over het water aan zowel de voor- als achterzijde. De woning beschikt over een ca. 15 meter diepe achtertuin op het zuiden, waar u de hele dag van de zon en het uitzicht kunt genieten. Direct achter en naast de woning vindt u bovendien een royale aanbouw met een multifunctionele kamer, ideaal als werkruimte, speelkamer of hobbyruimte. Door de multifunctionele aanbouw is de woning levensloopbestendig in te richten. Binnen treft u een lichte en ruime woonkamer, een praktische keuken en in totaal 3 slaapkamers (met de mogelijkheid om eenvoudig weer een 4e slaapkamer te realiseren). Dankzij de 12 zonnepanelen is de woning bovendien energiezuinig en toekomstbestendig. Ook buiten is er veel te waarderen: goede parkeergelegenheid op eigen perceel, een vrijstaande houten berging voor extra opslag en leven aan vaarwater, met volop recreatiemogelijkheden binnen handbereik Kortom: een royale, goed onderhouden woning op een toplocatie waar ruimte, water en comfort samenkomen. Een unieke kans voor wie wil wonen in een rustige, waterrijke omgeving en toch dicht bij alle voorzieningen van Leeuwarden.
Indeling:
Begane grond: ruime entree, bijkeuken, hal, toilet, woonkamer met open keuken, royale tuingerichte multifunctionele kamer van ca. 20 m2.
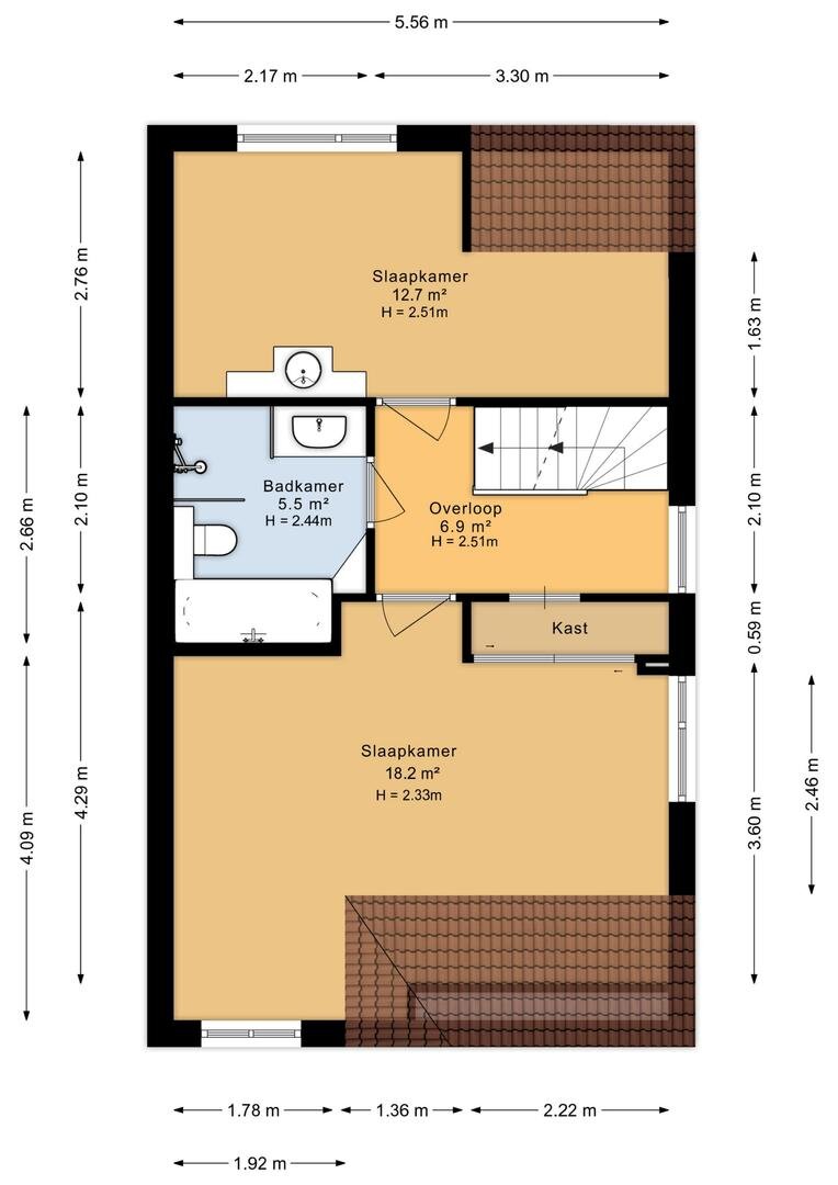
1e verdieping: overloop, 2 ruime slaapkamers van ca. 13 en 18 m2 (eenvoudig om de voorste slaapkamer te splitsen), vergrote badkamer met ligbad, douche en 2e toilet, vaste trap naar de 2e verdieping
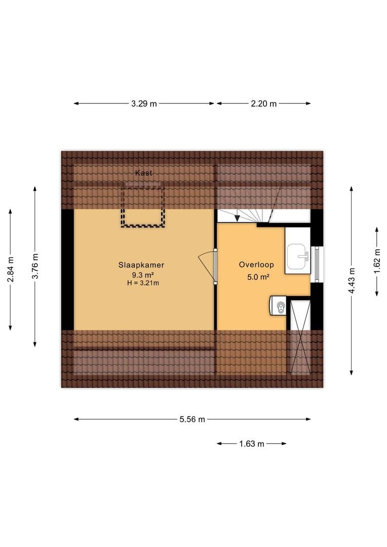
2e verdieping: overloop en een slaapkamer van ca. 9 m2.
Bijzonderheden:
- ligging aan open vaarwater
- achtertuin op het zuiden
- royale aanbouw geschikt voor meerdere doeleinden
- door de multifunctionele aanbouw is de woning levensloopbestendig in te richten
- populaire woonomgeving; waterrijk en groen
- royaal dakkapel op de achtergevel
- 12 zonnepanelen
- vergrote badkamer met ligbad, douche en 2e toilet
- bouwjaar 1988
- 324 m2 eigen grond
- om de hoek ligt recreatiegebied De Groene Ster; op loop- en fietsafstand
- binnenstad van Leeuwarden ook snel te bereiken via snelfietspad door Camminghaburen
- loopafstand winkelcentrum Camminghaburen
- de foto's video en plattegronden geven een goed beeld van deze mooie woning!
Aktepassering bij Hoekstra en Partners in Leeuwarden.
De verkoopinformatie is door ons met de nodige zorgvuldigheid samengesteld. Onzerzijds wordt echter geen enkele aansprakelijkheid aanvaard voor enige onvolledigheid, onjuistheid of anderszins, dan wel de gevolgen daarvan. Alle opgegeven maten en oppervlakten zijn indicatief. Koper heeft zijn eigen onderzoek plicht naar alle zaken die voor hem of haar van belang zijn. Met betrekking tot deze woning is de makelaar adviseur van verkoper. Wij adviseren u een deskundige (NVM-)makelaar in te schakelen die u begeleidt bij het aankoopproces. Indien u specifieke wensen heeft omtrent de woning, adviseren wij u deze tijdig kenbaar te maken en hiernaar zelfstandig onderzoek te (laten) doen. Van toepassing zijn de NVM voorwaarden.
Scheenstra Makelaars staat niet in voor de juistheid van de plattegronden en aanvaardt hiervoor geen aansprakelijkheid.
Volledige omschrijving
Minder omschrijving
Op een prachtige en gewilde woonlocatie aan VAARWATER in Camminghaburen staat deze royale twee-onder-één-kapwoning (ca. 148 m² woonoppervlak) met volop ruimte, comfort én schitterend uitzicht over het water aan zowel de voor- als achterzijde. De woning beschikt over een ca. 15 meter diepe achtertuin op het zuiden, waar u de hele dag van de zon en het uitzicht kunt genieten. Direct achter en naast de woning vindt u bovendien een royale aanbouw met een multifunctionele kamer, ideaal als werkruimte, speelkamer of hobbyruimte. Door de multifunctionele aanbouw is de woning levensloopbestendig in te richten. Binnen treft u een lichte en ruime woonkamer, een praktische keuken en in totaal 3 slaapkamers (met de mogelijkheid om eenvoudig weer een 4e slaapkamer te realiseren). Dankzij de 12 zonnepanelen is de woning bovendien energiezuinig en toekomstbestendig. Ook buiten is er veel te waarderen: goede parkeergelegenheid op eigen perceel, een vrijstaande houten berging voor extra opslag en leven aan vaarwater, met volop recreatiemogelijkheden binnen handbereik Kortom: een royale, goed onderhouden woning op een toplocatie waar ruimte, water en comfort samenkomen. Een unieke kans voor wie wil wonen in een rustige, waterrijke omgeving en toch dicht bij alle voorzieningen van Leeuwarden.
Indeling:
Begane grond: ruime entree, bijkeuken, hal, toilet, woonkamer met open keuken, royale tuingerichte multifunctionele kamer van ca. 20 m2.
1e verdieping: overloop, 2 ruime slaapkamers van ca. 13 en 18 m2 (eenvoudig om de voorste slaapkamer te splitsen), vergrote badkamer met ligbad, douche en 2e toilet, vaste trap naar de 2e verdieping
2e verdieping: overloop en een slaapkamer van ca. 9 m2.
Bijzonderheden:
- ligging aan open vaarwater
- achtertuin op het zuiden
- royale aanbouw geschikt voor meerdere doeleinden
- door de multifunctionele aanbouw is de woning levensloopbestendig in te richten
- populaire woonomgeving; waterrijk en groen
- royaal dakkapel op de achtergevel
- 12 zonnepanelen
- vergrote badkamer met ligbad, douche en 2e toilet
- bouwjaar 1988
- 324 m2 eigen grond
- om de hoek ligt recreatiegebied De Groene Ster; op loop- en fietsafstand
- binnenstad van Leeuwarden ook snel te bereiken via snelfietspad door Camminghaburen
- loopafstand winkelcentrum Camminghaburen
- de foto's video en plattegronden geven een goed beeld van deze mooie woning!
Aktepassering bij Hoekstra en Partners in Leeuwarden.
De verkoopinformatie is door ons met de nodige zorgvuldigheid samengesteld. Onzerzijds wordt echter geen enkele aansprakelijkheid aanvaard voor enige onvolledigheid, onjuistheid of anderszins, dan wel de gevolgen daarvan. Alle opgegeven maten en oppervlakten zijn indicatief. Koper heeft zijn eigen onderzoek plicht naar alle zaken die voor hem of haar van belang zijn. Met betrekking tot deze woning is de makelaar adviseur van verkoper. Wij adviseren u een deskundige (NVM-)makelaar in te schakelen die u begeleidt bij het aankoopproces. Indien u specifieke wensen heeft omtrent de woning, adviseren wij u deze tijdig kenbaar te maken en hiernaar zelfstandig onderzoek te (laten) doen. Van toepassing zijn de NVM voorwaarden.
Scheenstra Makelaars staat niet in voor de juistheid van de plattegronden en aanvaardt hiervoor geen aansprakelijkheid.
Woning kenmerken
| Type | Eengezinswoning, Woonruimte, Twee onder een kapwoning |
|---|---|
| Bouwvorm | bestaande bouw |
| Woonoppervlakte | 148 m² |
| Perceeloppervlakte | 324 m² |
| Energielabel | C |
| Bouwjaar | 1988 |
Staniastate 22
Leeuwarden
€ 499.000 k.k.
Vragen over Staniastate 22, Leeuwarden?

Ate Scheenstra
de makelaar voor deze woning
| 058-2650063 | |
| [email protected] |
Refresh to make it work.
Vragen over Staniastate 22, LEEUWARDEN?
Bel ons op 058-2650063 voor direct contact of maak een afspraak via ons contactformulier.














































































































Refresh to make it work.
Refresh to make it work.



