Woning omschrijving
Wonen op een absolute toplocatie aan open vaarwater in de populaire wijk Camminghaburen? Deze royale 2-onder-1-kapwoning met maar liefst 192 m² woonoppervlakte, 5 slaapkamers en een multifunctionele ruimte (eventuele mogelijkheid voor kantoor- of praktijkruimte) op de begane grond met aparte zij-ingang biedt ruimte, comfort én unieke woonkwaliteit. Gelegen in één van de meest gewilde straten van de wijk, met eigen aanlegplek voor de boot direct achter het huis, is dit een buitenkans voor gezinnen, thuiswerkers en liefhebbers van water en ruimte. De woning ligt in de geliefde wijk Camminghaburen in Leeuwarden, bekend om zijn groene opzet, waterpartijen en uitstekende voorzieningen. Staniastate staat bekend als één van de mooiste en meest gewilde straten van Camminghaburen. Scholen, winkels, openbaar vervoer en uitvalswegen bevinden zich op korte afstand.
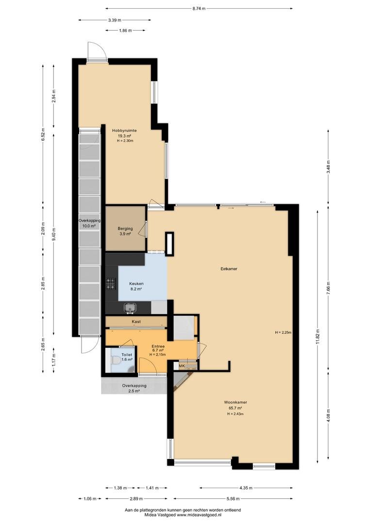
Indeling:
Begane grond: entree, hal, toilet, ruime woonkamer met eetkamer en open keuken, berging/bijkeuken en een royale multifunctionele ruimte met aparte zij-ingang van ca. 19 m2.
1e verdieping: overloop, 4 ruime slaapkamers van ca. 7, 12, 13 en 17 m2 (voorzien van zolder), moderne badkamer met dubbele wastafel, douche en 2e toilet.
2e verdieping: overloop, 5e royale slaapkamer van ca. 13 m2 en bergruimte.
Wat maakt deze woning bijzonder?
- direct aan open vaarwater met eigen aanlegplek
- royale aanbouw én opbouw, uitzonderlijk veel leefruimte
- 192 m² woonoppervlakte
- 5 volwaardige slaapkamers
- moderne badkamer (2026)
- CV-ketel vernieuwd in 2023
- gunstig energielabel B
- multifunctionele ruimte met eigen toegang, ideaal voor aan-huis-verbonden beroep; kantoor- of praktijkruimte (voor mogelijkheden informeer bij de gemeente Leeuwarden).
Aktepassering bij Era notarissen Leeuwarden.
Of het door koper beoogde gebruik binnen het bestemmingsplan valt, dient door de koper zelf bij de gemeente te worden gecontroleerd. Het verkrijgen van de benodigde toestemming(en) en/of vergunning(en) van overheidswege dient door koper zelf en voor eigen rekening te geschieden.
De verkoopinformatie is door ons met de nodige zorgvuldigheid samengesteld. Onzerzijds wordt echter geen enkele aansprakelijkheid aanvaard voor enige onvolledigheid, onjuistheid of anderszins, dan wel de gevolgen daarvan. Alle opgegeven maten en oppervlakten zijn indicatief. Koper heeft zijn eigen onderzoek plicht naar alle zaken die voor hem of haar van belang zijn. Met betrekking tot deze woning is de makelaar adviseur van verkoper. Wij adviseren u een deskundige (NVM-)makelaar in te schakelen die u begeleidt bij het aankoopproces. Indien u specifieke wensen heeft omtrent de woning, adviseren wij u deze tijdig kenbaar te maken en hiernaar zelfstandig onderzoek te (laten) doen. Van toepassing zijn de NVM voorwaarden.
Scheenstra Makelaars staat niet in voor de juistheid van de plattegronden en aanvaardt hiervoor geen aansprakelijkheid.
Volledige omschrijving
Minder omschrijving
Indeling:
Begane grond: entree, hal, toilet, ruime woonkamer met eetkamer en open keuken, berging/bijkeuken en een royale multifunctionele ruimte met aparte zij-ingang van ca. 19 m2.
1e verdieping: overloop, 4 ruime slaapkamers van ca. 7, 12, 13 en 17 m2 (voorzien van zolder), moderne badkamer met dubbele wastafel, douche en 2e toilet.
2e verdieping: overloop, 5e royale slaapkamer van ca. 13 m2 en bergruimte.
Wat maakt deze woning bijzonder?
- direct aan open vaarwater met eigen aanlegplek
- royale aanbouw én opbouw, uitzonderlijk veel leefruimte
- 192 m² woonoppervlakte
- 5 volwaardige slaapkamers
- moderne badkamer (2026)
- CV-ketel vernieuwd in 2023
- gunstig energielabel B
- multifunctionele ruimte met eigen toegang, ideaal voor aan-huis-verbonden beroep; kantoor- of praktijkruimte (voor mogelijkheden informeer bij de gemeente Leeuwarden).
Aktepassering bij Era notarissen Leeuwarden.
Of het door koper beoogde gebruik binnen het bestemmingsplan valt, dient door de koper zelf bij de gemeente te worden gecontroleerd. Het verkrijgen van de benodigde toestemming(en) en/of vergunning(en) van overheidswege dient door koper zelf en voor eigen rekening te geschieden.
De verkoopinformatie is door ons met de nodige zorgvuldigheid samengesteld. Onzerzijds wordt echter geen enkele aansprakelijkheid aanvaard voor enige onvolledigheid, onjuistheid of anderszins, dan wel de gevolgen daarvan. Alle opgegeven maten en oppervlakten zijn indicatief. Koper heeft zijn eigen onderzoek plicht naar alle zaken die voor hem of haar van belang zijn. Met betrekking tot deze woning is de makelaar adviseur van verkoper. Wij adviseren u een deskundige (NVM-)makelaar in te schakelen die u begeleidt bij het aankoopproces. Indien u specifieke wensen heeft omtrent de woning, adviseren wij u deze tijdig kenbaar te maken en hiernaar zelfstandig onderzoek te (laten) doen. Van toepassing zijn de NVM voorwaarden.
Scheenstra Makelaars staat niet in voor de juistheid van de plattegronden en aanvaardt hiervoor geen aansprakelijkheid.
Woning kenmerken
| Type | Eengezinswoning, Woonruimte, Twee onder een kapwoning |
|---|---|
| Bouwvorm | bestaande bouw |
| Woonoppervlakte | 192 m² |
| Perceeloppervlakte | 322 m² |
| Energielabel | B |
| Bouwjaar | 1988 |
Staniastate 24
Leeuwarden
€ 595.000 k.k.
Interesse in Staniastate 24, Leeuwarden?

Ate Scheenstra
de makelaar voor deze woning
| 058-2650063 | |
| [email protected] |
Refresh to make it work.
Interesse?
Plan een bezichtiging voor Staniastate 24, Leeuwarden.
Bel ons op 058-2650063 voor direct contact. Of laat je gegevens achter en wij nemen zo snel mogelijk contact met je op.
























































































Refresh to make it work.
Refresh to make it work.


