Woning omschrijving
Prachtige GROENE en WATERRIJKE woonomgeving. De woning is grenzend aan een groenstrook en heeft direct zicht op het VAARWATER. De VRIJSTAANDE woning is fraai onder architectuur gebouwd en heeft een aangebouwde garage en berging/bijkeuken. Er zijn 2 slaapkamers en een badkamer op de begane grond aanwezig. Tevens is de verdieping voorzien van een grote slaapkamer en een moderne 2e badkamer!
Kollum is een dorp met een gezellig winkelcentrum, diverse scholen, supermarkten en medische zorg. Kortom alle gewenste voorzieningen en ook nog eens gelegen op korte afstand van de woning.
Indeling:
Begane grond: voorentree, royale hal, modern toilet, ruime tuingerichte woonkamer met schuifpui, half open gemoderniseerde keuken voorzien van apparatuur, 2 slaapkamers, moderne badkamer met dubbele wastafelmeubel en douche, garage en bijkeuken/berging.
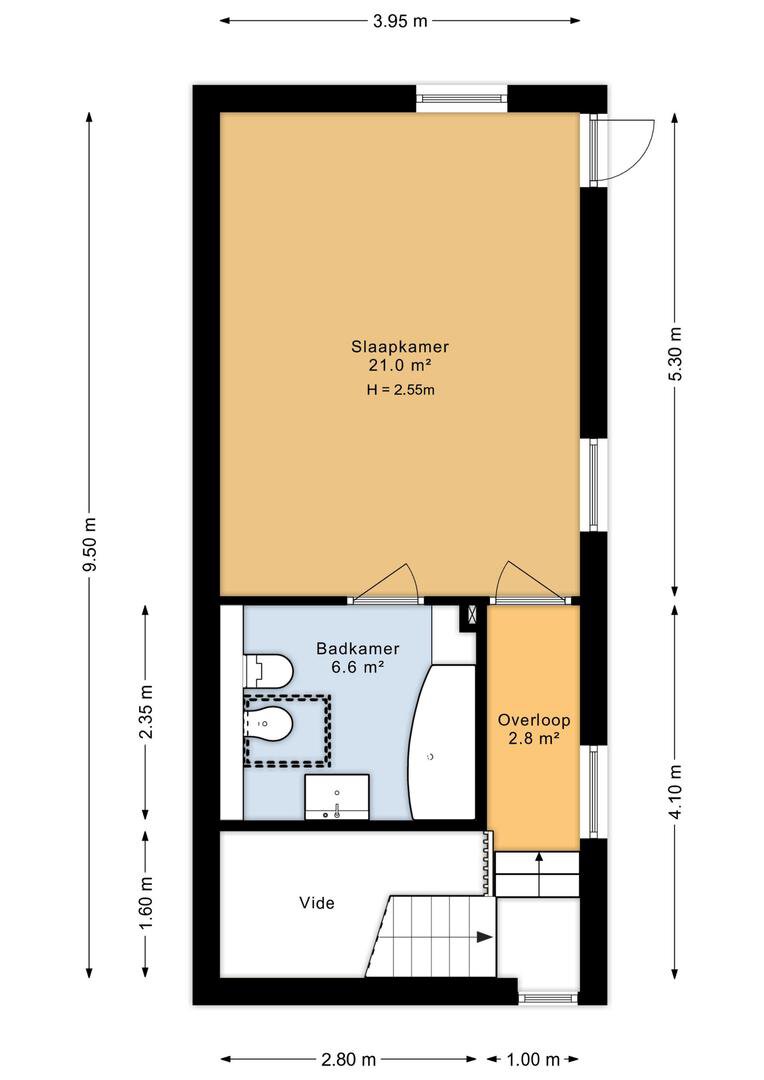
Verdieping: overloop, ruime slaapkamer en moderne badkamer met ligbad/douche, wastafelmeubel, toilet en bidet.
Bijzonderheden:
- super locatie aan de rand van het dorp; groene woonomgeving en zicht op vaarwater
- de garage is ook via de hal te bereiken
- 2 slaapkamers en een badkamer op de begane grond
- één van de slaapkamers beneden is ook goed te gebruiken als hobby-werkkamer
- 3e grote slaapkamer op de verdieping met eigen moderne badkamer
- gunstig energielabel B
- 528 m2 eigen grond
- bouwjaar 1999
- woonoppervlakte 135 m2
- de foto's, video en plattegronden geven een goed beeld van deze mooie woning!
De verkoopinformatie is door ons met de nodige zorgvuldigheid samengesteld. Onzerzijds wordt echter geen enkele aansprakelijkheid aanvaard voor enige onvolledigheid, onjuistheid of anderszins, dan wel de gevolgen daarvan. Alle opgegeven maten en oppervlakten zijn indicatief. Koper heeft zijn eigen onderzoek plicht naar alle zaken die voor hem of haar van belang zijn. Met betrekking tot deze woning is de makelaar adviseur van verkoper. Wij adviseren u een deskundige (NVM-)makelaar in te schakelen die u begeleidt bij het aankoopproces. Indien u specifieke wensen heeft omtrent de woning, adviseren wij u deze tijdig kenbaar te maken en hiernaar zelfstandig onderzoek te (laten) doen. Van toepassing zijn de NVM voorwaarden.
Scheenstra Makelaars staat niet in voor de juistheid van de plattegronden en aanvaardt hiervoor geen aansprakelijkheid.
Volledige omschrijving
Minder omschrijving
Kollum is een dorp met een gezellig winkelcentrum, diverse scholen, supermarkten en medische zorg. Kortom alle gewenste voorzieningen en ook nog eens gelegen op korte afstand van de woning.
Indeling:
Begane grond: voorentree, royale hal, modern toilet, ruime tuingerichte woonkamer met schuifpui, half open gemoderniseerde keuken voorzien van apparatuur, 2 slaapkamers, moderne badkamer met dubbele wastafelmeubel en douche, garage en bijkeuken/berging.
Verdieping: overloop, ruime slaapkamer en moderne badkamer met ligbad/douche, wastafelmeubel, toilet en bidet.
Bijzonderheden:
- super locatie aan de rand van het dorp; groene woonomgeving en zicht op vaarwater
- de garage is ook via de hal te bereiken
- 2 slaapkamers en een badkamer op de begane grond
- één van de slaapkamers beneden is ook goed te gebruiken als hobby-werkkamer
- 3e grote slaapkamer op de verdieping met eigen moderne badkamer
- gunstig energielabel B
- 528 m2 eigen grond
- bouwjaar 1999
- woonoppervlakte 135 m2
- de foto's, video en plattegronden geven een goed beeld van deze mooie woning!
De verkoopinformatie is door ons met de nodige zorgvuldigheid samengesteld. Onzerzijds wordt echter geen enkele aansprakelijkheid aanvaard voor enige onvolledigheid, onjuistheid of anderszins, dan wel de gevolgen daarvan. Alle opgegeven maten en oppervlakten zijn indicatief. Koper heeft zijn eigen onderzoek plicht naar alle zaken die voor hem of haar van belang zijn. Met betrekking tot deze woning is de makelaar adviseur van verkoper. Wij adviseren u een deskundige (NVM-)makelaar in te schakelen die u begeleidt bij het aankoopproces. Indien u specifieke wensen heeft omtrent de woning, adviseren wij u deze tijdig kenbaar te maken en hiernaar zelfstandig onderzoek te (laten) doen. Van toepassing zijn de NVM voorwaarden.
Scheenstra Makelaars staat niet in voor de juistheid van de plattegronden en aanvaardt hiervoor geen aansprakelijkheid.
Woning kenmerken
| Type | Eengezinswoning, Woonruimte, Vrijstaande woning |
|---|---|
| Bouwvorm | bestaande bouw |
| Woonoppervlakte | 135 m² |
| Perceeloppervlakte | 528 m² |
| Energielabel | B |
| Bouwjaar | 1999 |
Molenhoek 49
Kollum
€ 499.000 k.k.
Vragen over Molenhoek 49, Kollum?

Ate Scheenstra
de makelaar voor deze woning
| 058-2650063 | |
| [email protected] |
Refresh to make it work.
Vragen over Molenhoek 49, KOLLUM?
Bel ons op 058-2650063 voor direct contact of maak een afspraak via ons contactformulier.


















































































Refresh to make it work.
Refresh to make it work.

